Просторен и светъл 3-стаен апартамент в нова жилищна сграда, отличаваща се с висококачествено изпълнение и модерна визия. Районът е добре развит и с отлична инфрастуктура, много комуникативно, но тихо място в близост до THE MALL, спирки на градски транспорт и бъдеща метростанция на Цариградско шосе, което гарантира удобство и бърз достъп до централната градска част и всички части на града.
Сградата ще бъде въведена в експлоатация до края на 2026 г.
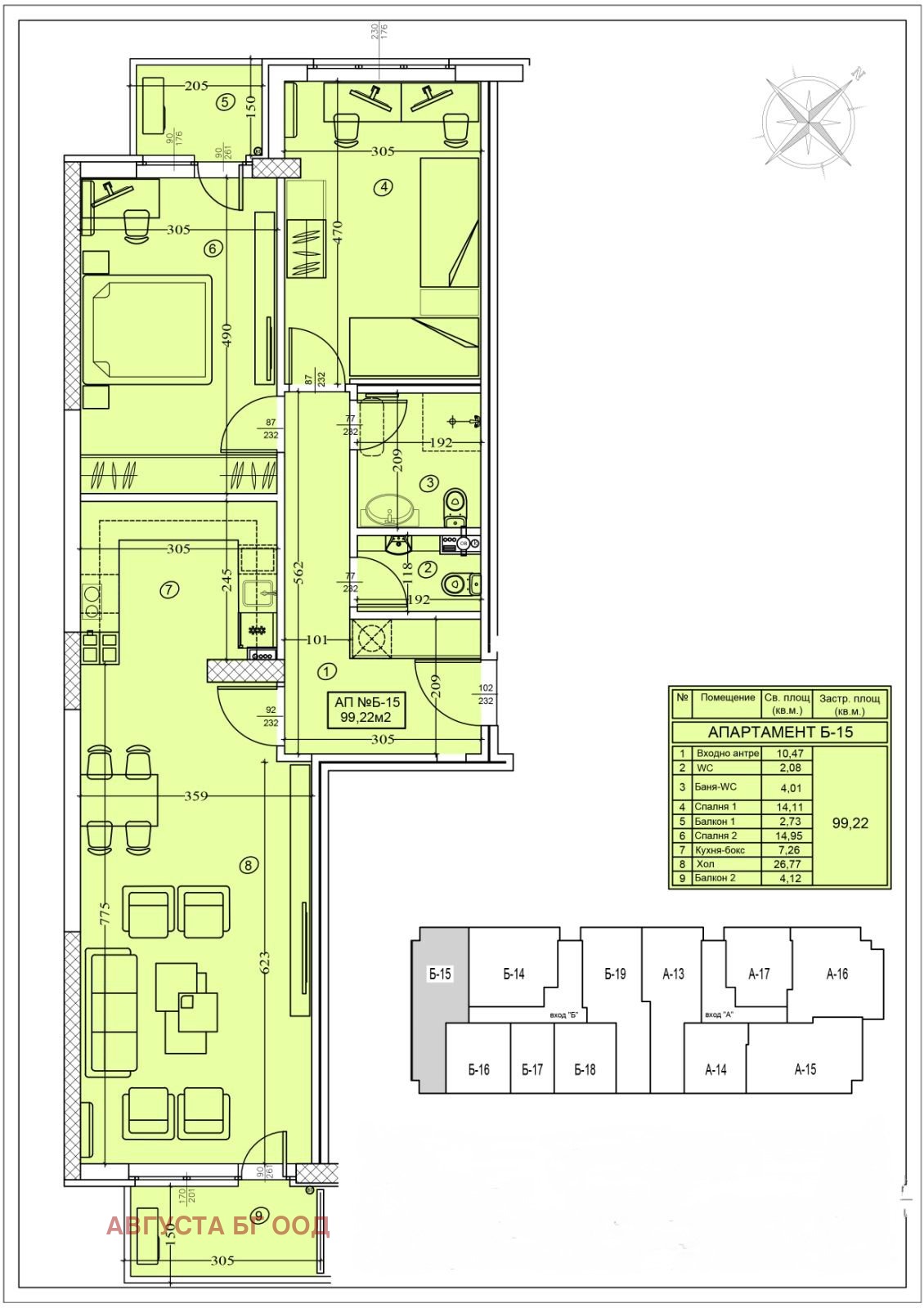
Частроена площ на имота: 99,22 м2
Разпределение: дневна с кухненски бокс - 34 м2; две спални - 15 м2 и 14 м2; баня с тоалетна - 4 м2, тоалетна - 2 м2, антре с място за вграден гардероб - 10,5 м2, два балкона - 4 м2 и 2,7 м2; прилежащо мазе;
Възможност за закупуване на гараж или паркомясто.
Технически характеристики и предимства на сградата:
* Смесена вентилируема фасада от HPL и минерална мазилка;
* Топлоизолационен слой на сградата - 14см.;
* Зидария - едроразмерни тухлени блокове на Wienerberger;
* Шумоизолация между отделните жилища - в подове, стени и тавани;
* Външна дограма - 6-камерен профил с троен стъклопакет, външно и вътрешно стъкло 'К' - нискоемисийно;
* Отопление на сградата с ТЕЦ - монтирани подови отоплителни панели, оборудвана абонатна станция;
* Общи части и фоайе, оформени по индивидуален дизайн - под - гранит, парапети - алуминий, хидравличен асансьор;
* Система за видеонаблюдение на сградата - изградена с DVR устройство и камери с възможност за нощно виждане, монтирани на всички подходи към сградата;
Този проект съчетава визия и стил с функционалност и екстри, които значително надскачат стандартите на локалния пазар. Сградата предлага жилища с висококачествено изпълнение, които имат необходимите дадености за запазване стойността на инвестицията във времето.
За повече информация и огледи - консултант продажби - Милена Кръстева - 0898 574 891







