Компания `Х` представя на Вашето внимание тристаен апартамент в с. Марково.
МЕСТОПОЛОЖЕНИЕ: Село Марково в Пловдив е предпочитана локация заради спокойната си атмосфера, чистия въздух и панорамните гледки към града и Родопите. Намира се само на няколко минути с автомобил от града, което съчетава уединение и природа с удобен достъп до всички градски удобства.
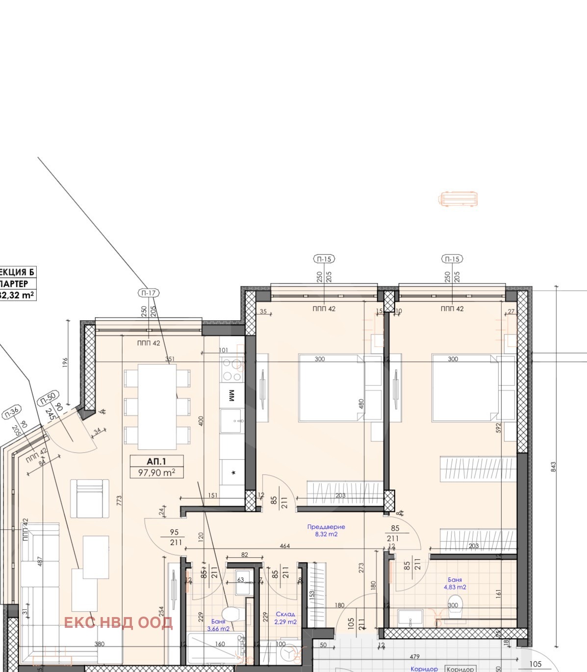
РАЗПРЕДЕЛЕНИЕ: Разполага с площ от 117 кв.м., разгърната в следното функционално разпределение: кухненски бокс с просторен хол, две спални, склад, две бани с тоалетни.
СЪСТОЯНИЕ: Апартаментът е в строеж и очаква своя първи собственик. Пространството предлага чисто начало и свобода за създаване на дом по собствен вкус и стил. Място, в което всяка идея може да се превърне в реалност.
Заповядайте да Ви го покажем. Използвайки нашите услуги Вие ще превърнете закупуването на новия си дом в едно приятно изживяване, ще получите персонален консултант, съдействие при кандидатстване за кредит от всички банки в България, интериорни дизайнери и екип, който да се погрижи за нужните документи по Вашата сделка. На Ваше разположение сме всеки ден, от понеделник до неделя от 09:00 до 20:00ч. Възползвайте се от безплатна консултация в наш офис, където ще ви спестим време и ще ви запознаем с всички актуални имоти в България, отговарящи на Вашето търсене. Свържете се с нас на 0887779990 или на 0884060990 и цитирайте кода към имота: 99166







