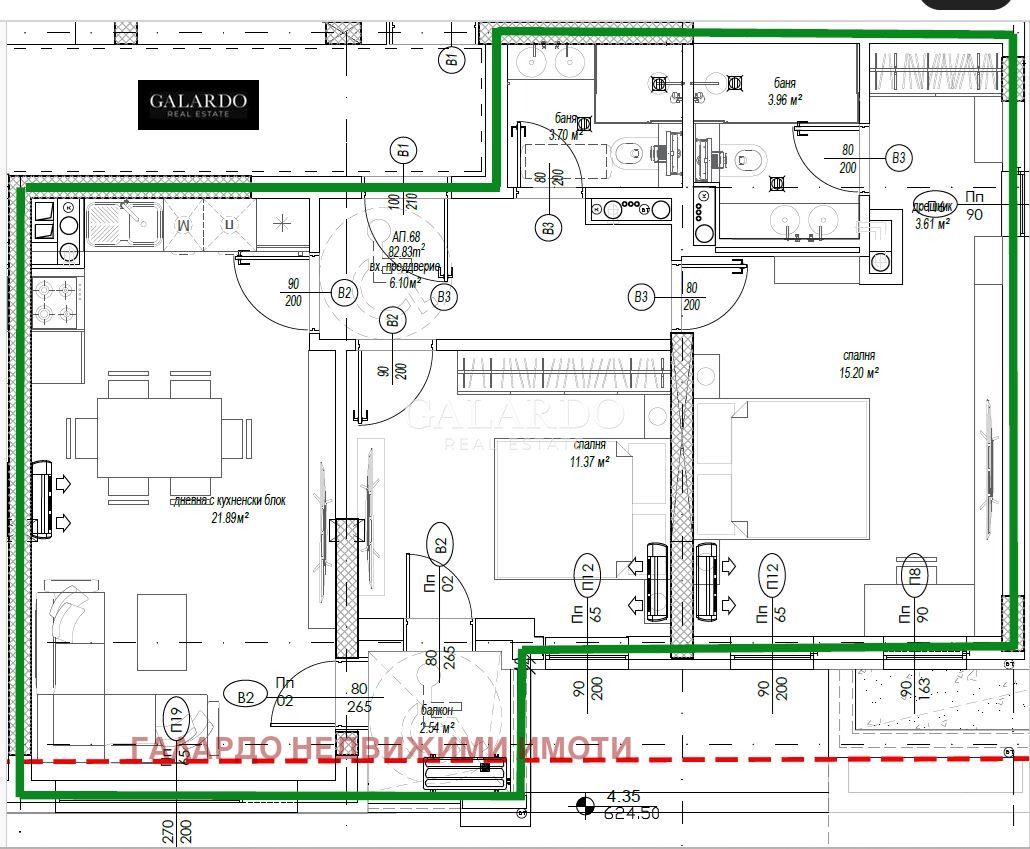
Galardo Real Еstate предлага прекрасен тристаен апартамент в новa жилищна сграда на топ локация. Намира се в ж.к.Младост 4 , с богато озелененo околоблоково пространство и контрол на достъп. Имотът, който се предлага е на тринаистия етаж над партер, с източно изложение към бул.А.Малинов и западно изложение към МВР академията.
Към него може да бъде закупен и склад на цена от 1150 евро на м2
Сградата ще бъде изпълнена с висококачествени материали, бързоскоростни асансьори KONE и луксозни общи части.
Имот с отличен потенциал в топ локация за кв. Младост, с бърз достъп до метро, Бизнес парк, основни пътни артерии и всички необходими удобства.
Подземни паркоместа и гаражи на цени съответно 25 750 евро и 30 900 евро на етаж сутерен.
Такса поддръжка: 0,60 евро с ДДС
РФ 21983







