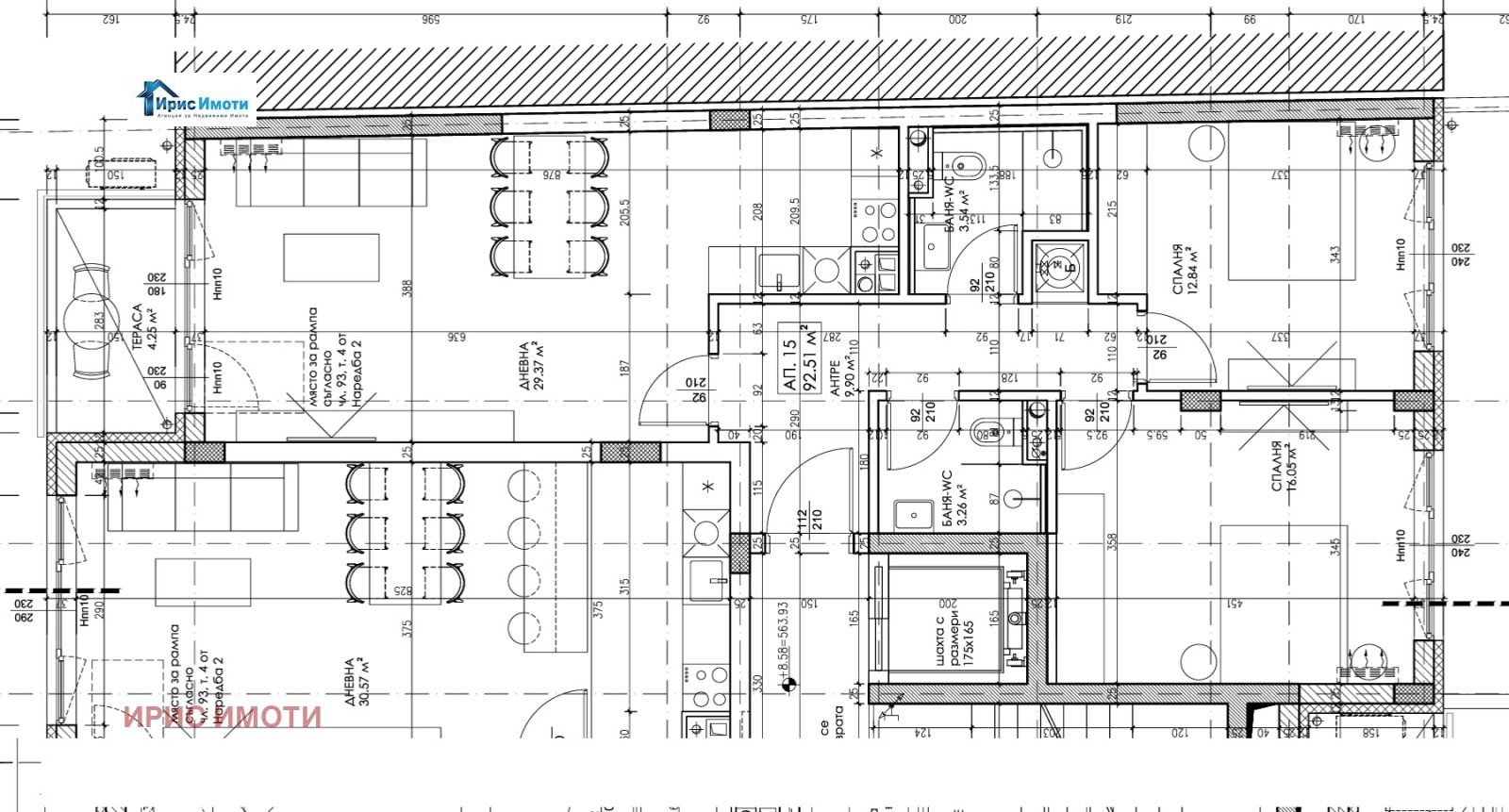
Оферта 30218 Доказан инвеститор с много, луксозно построени сгради в престижните райони на София, стартира строителството на модерна сграда в кв. Люлин 10 / близо до бул. Сливница и до ул. Орион /. Сградата ще бъде изпълнена качествено и с висок клас строителни материали. Предлаганият апартамент е тристаен, 113 кв.м / с общите части / и е разположен на четвърти етаж /от седем/. Разпределение: коридор, дневна с трапезария и кухненски бокс, две спални, две бани с тоалетни, мокро помещение , тераса. Дограмата ще бъде петкамерна PVC, с френски тип остъкляване. Отопление: на електричество. Апартаментът ще бъде предаден на замазка и шпакловка. Има възможност за закупуване и на надземни и подземни паркоместа и гаражи. Гъвкава схема на плащане!
За още подобни и непубликувани оферти, вижте на: www.irisimoti.bg



