КРАСИВА, СЪВРЕМЕННА, ЕЛЕГАНТНА, НОВА тухлена сграда на удобна и супер комуникативна локация. С Акт 14 към момента, очакван Акт 16 - пролетта на 2027 г. Удобни, съобразени схеми на плащане!
Все още и налични гаражи, паркоместа, складове на отделни цени. Сградата ще бъде реализирана от утвърден, доказан през годините строител по най-съвременни технологии-дограми, фасадни облицовки, топлоизолации за отлична енергоефективност. Локацията е отлична, защото е в близост до множество линии на градския транспорт, метростанция, учебни и детски заведения, супермаркети, търговски обекти, паркове, медицински заведения /Първа АГ болница 'Св.София', медицински центрове/.
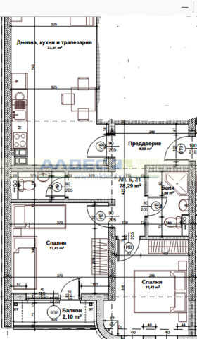
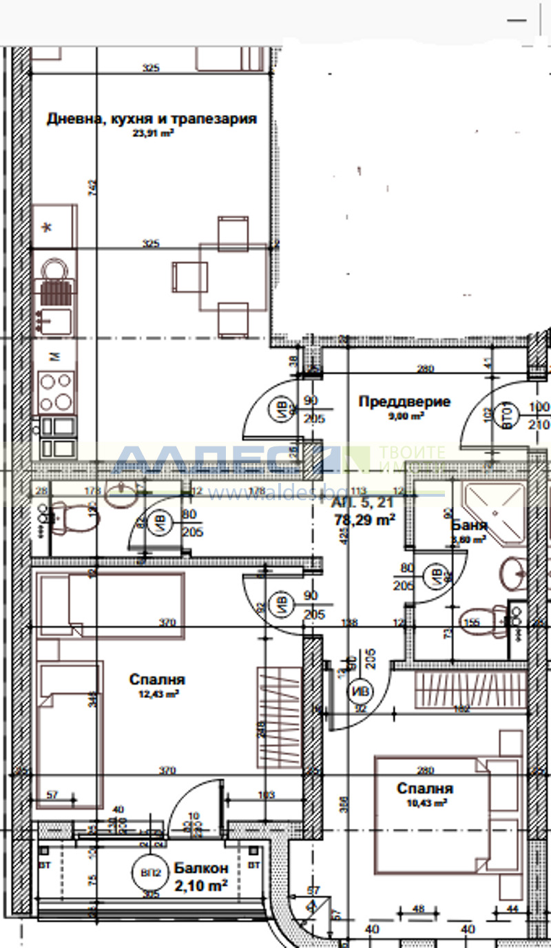
НОВ, ФУНКЦИОНАЛЕН, ТУХЛЕН тристаен апартамент, на етаж първи над гаражи от шестетажна монолитна, тухлена сграда с подземен и приземен етажи. Застроена площ: 78.29 кв.м. Площ с общи части: 101.86 кв.м.
РАЗПРЕДЕЛЕНИЕ: предверие, дневна, кухня и трапезария, две спални, като към едната има балкон, две бани с тоалетни.
ПОДОВИ НАСТИЛКИ: обектите се предават на замазка и шпакловка; по желание на клиента: могат да бъдат завършени 'до ключ', срещу допълнително заплащане.
ЗА ПОВЕЧЕ ПОДРОБНОСТИ И ОГЛЕДИ: 0892242802. Оферта 11987 (Ап.21)







