Бутикова жилищна сграда с Морска панорама, съчетаваща класата на луксозен жилищен комплекс край морето и същевременно усещане за топлина и уюта на дома.
БИЛДИНГ БОКС предлага за продажба тристаен апартамент в новострояща се сграда.
-ЛОКАЦИЯ: Разположена в кв. Виница в близост до главна пътна артерия, граничеща с борова гора, жилищната сграда предоставя уникално съчетание между чист свеж горски въздух и спокойствие. , с отлично изградена инфраструктура: супермаркети и магазини, ресторанти , училище, детска градина, паркове и детски площадки, 2 медицински центъра, ветеринарна лечебница, аптеки, бензиностанции, кметство, клон на банка, конна база, множество хотели. Районът се обслужва от автобусни линии с номера: 29, 31, 31а В непосредствена близост е до курортният комплекс Свети Свети Константин и Елена.
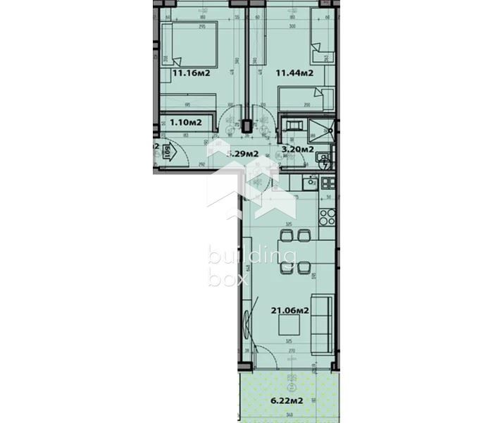
-РАЗПРЕДЕЛЕНИЕ: Апартаментът се състои от всекидневна с кухненски бокс с площ 21.06 кв.м., 2 спални по 11.44 кв.м. и 11.16 кв.м., баня с тоалетна, склад, коридор. Към апартамента има двор с площ - 6.22 кв.м.
-ЕТАЖНОСТ: Етаж 1 от общо 4
-ОТОПЛЕНИЕ: Електричество
-ИЗЛОЖЕНИЕ: Североизток/Юг
-СТРОИТЕЛСТВО: Тухла
-ПАРКИРАНЕ: Към имота има възможност да се закупи паркомясто;
-СГРАДА: Сградата е с две секции на 4 етажа. Очаква се Акт 16 - 2027 година
Билдинг Бокс предлага безплатна консултация и съдействие при финансиране на избрания от Вас имот
Оферта 27587







