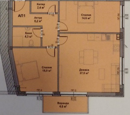
Предлагаме за продажба тристаен апартамент, разположен на партерен етаж
АПАРТАМЕНТ 107 кв.м |В СТРОЕЖ| АКТ.14 - 1299 /кв.м
________________________________________
🏡 Характеристики
Обща площ: 113.40 кв.м
Разположение: партер
Голям дневен тракт
Две просторни спални
Баня с WC
Килер
Тераса
Маза 6.98 кв.м.
💶 Цена: 1299 /кв.м
(Изключително конкурентна цена за имот в Пчелина)
________________________________________
🅿 Паркомясто: 12 000
________________________________________
🌟 Защо този имот е специален?
Готова сграда с Акт 14 стабилно и качествено строителство
Подходящ за семейства с деца, домашни любимци, хора търсещи пространство
Отлична инвестиция с висока доходност
Малка, модерна сграда в престижен и търсен район
В близост до училища, магазини, спирки и зелени площи
Подходящо за:
Семейства, търсещи комфорт и спокойна среда
Хора, желаещи сигурна и доходоносна инвестиция
Купувачи, които искат нов дом в развиващ се район на Варна







