ТОПИММО предлага за продажба тристаен апартамент в нова сграда с Акт 16 в най-бързо развиващия се район на града м-т Пчелина . Достъп изцяло по асфалтов път, само на 30 метра от ул. Прилеп.
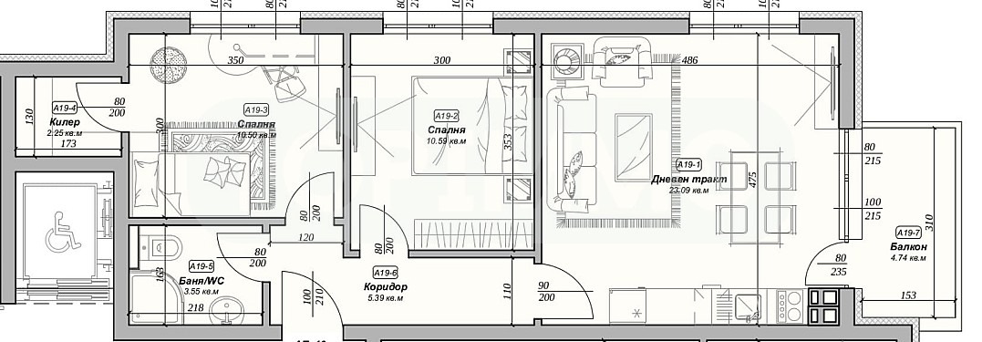
Имотът е напълно обзаведен и оборудван, разположен на четвърти етаж с асансьор със следното разпределение: коридор, всекидневна с кухненска част 23 кв.м. с излаз на тераса с нескриваема панорама към морето и Варненското езеро, спалня 10.6 в.м., втора спалня 10.5 кв.м. с дрешник към нея, санитарен възел.
С възможност за покупка на гараж или паркомясто.
Имотът е подходящ както за лично ползване, така и за отдаване под наем, тъй като районът е предпочитан заради преобладаващото ново строителство, панорамните гледки и бързата връзка с центъра на града.
Използвайки нашите услуги за покупката на новия си дом ще получите съдействие и БЕЗПЛАТНА професионална консултация от наш кредитен консултант.
Можем да организираме оглед в удобно за вас време, свържете се с нас! Референтен номер: PL-4786







