Оферта 6455
➡️ БРАВА ЕСТЕЙТ Ви представя тристаен апартамент в новострояща се модерна сграда в кв. Кършияка, гр. Пловдив.
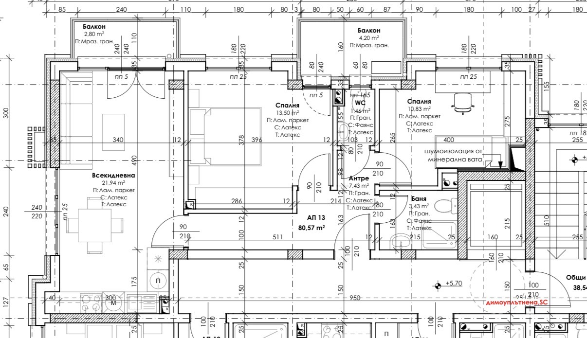
➡️ Характеристики на имота:
Срок за завършване: Акт 16 2028 г.
Изложение: Юг.
Площ: 91 кв. м
Етаж : 3 от 5
➡️ Предимства на сградата:
Нисък процент общи части
Отлична връзка с централната част на града
Кофражи: Пери гаранция за здрава и прецизна конструкция
Тухла: Wienerberger една от най-качествените и енергийно ефективни на пазара
Алуминиева дограма осигурява отлична шумо- и топлоизолация
Мазилки Baumit доказано качество и дълготрайност
100% подсигурено паркиране огромно удобство за живущите
⭐️Този имот е отличен избор, както за комфортно градско жилище, така и за инвестиция с висока възвръщаемост в един от най-динамично развиващите се райони на Пловдив.
➡️Предлагаме БЕЗПЛАТНО кредитно посредничество за ипотека, потребителски кредит и рефинансиране!
📞За повече информация и оглед, ни се обадете директно!







