Forton Homes представя тристаен апартамент в жилищен комплекс от затворен тип в кв. Бояна, вече с Акт 16.
Създаден за клиенти, които търсят умна инвестиция и по-добро качество на живот.
Комплексът е изграден в непосредствена близост до бул. България и Околовръстен път, близо до природен парк Витоша , Боянската църква и Боянския водопад.
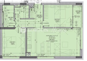
Апартаментът се намира на трети етаж над партер, североизток изложение.
Има възможност за закупуване на паркомясто.
Предимства:
?
контролиран достъп посредством охрана;
детски кътове;
озеленени междублокови пространства;
фитнес и ресторант;
близо до планината;
бърз достъп до центъра на града
Технически характеристики:
3 м светла височина на таваните;
Окабеляване за SMART управление;
подове с шумоизолация Copersound P-TEX;
ключове и контакти Legrand Valena Life;
PVC дограма с троен стъклопакет K?mmerling;
отопление на газ с котел Bosch и окабеляване за климатици;
входна врата Solid, модел iDoor 20-23;
тераса с мразоустойчив гранитогрес.
Цената е с вкл. ДДС
Твоят нов дом те очаква!
Водещ консултант: Иван Хаджикиров
+359 (887) 502 211
[email protected]







