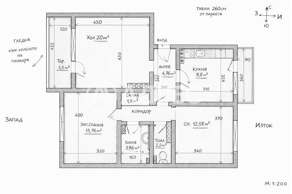
Просторен тристаен апартамент с 4 отделни стаи. Този функционално разпределен апартамент впечатлява с възможността за преустройство на многостаен. Състоящ се от хол, кухня, две спални, баня, тоалетна, две тераси, които са остъклени.Големите прозорци пропускат достатъчно естествена светлина, а разпределението позволява всяка зона да бъде използвана максимално ефективно.
Началото на кв. Гагарин- една от най-предпочитаните и динамично развиващи се локации в града. Локация с отлична инфраструктура - непосредствена близост до Панаира, 'Фантастико' и магазини за ежедневни нужди. Пешеходно разстояние до Центъра - всичко важно е на крачка разстояние: заведения, културни забележителности, паркове. Две училища и детска градина наблизо -идеално за семейство с деца. Автобусни спирки на 1-2 минути пеша - бърза и удобна връзка с целия град.
Монолитна сграда с контролиран достъп.
Жилището е подходящо както за семейство, така и за инвеститори, тъй като предлага стабилен потенциал за отдаване под наем - благодарение на близостта до Панаира. Реновиран асансьор.
Обади се сега и цитирай този код 681585







