! ! ! ПРЕД АКТ 16 ! ! ! МЕТРОСТАНЦИЯ ИНТЕР ЕКСПО ЦЕНТЪР!!! 10% НА ПРЕДВАРИТЕЛЕН ДОГОВОР !!!
Хоум 2 Ю продава, тристаен апартамент в сграда пред АКТ 16!
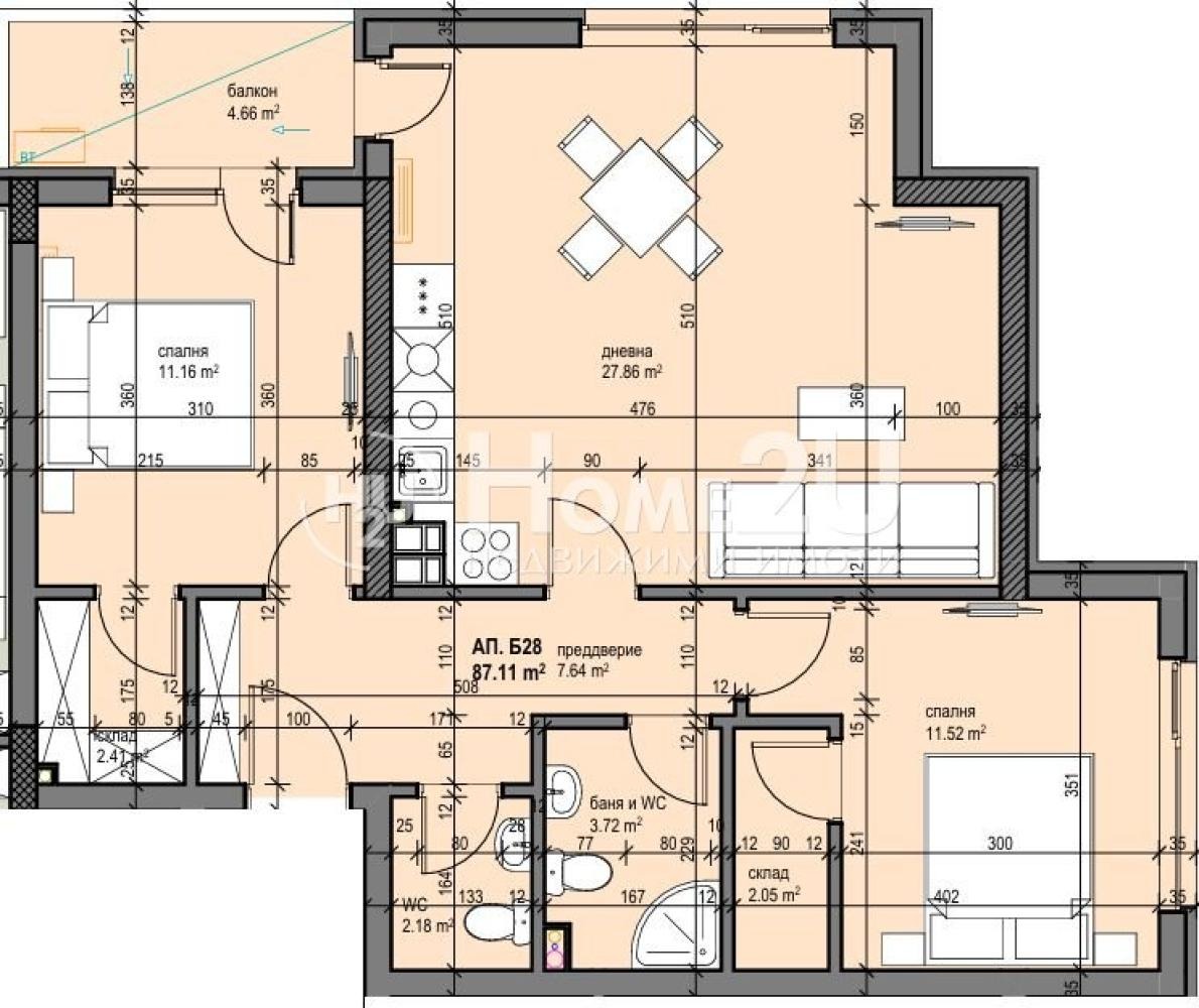
Просторен апартамент с площ от 105 м2 със следното разпределение: входно антре, всекидневна с кухненски бокс, две спални всяка от която
с дрешник. Апартаментите са с оптимално усвоено пространство и светли помещения, благодарение на прозорците, които осигуряват
повече осветеност. Всеки от тях разполага с пожароустойчива и шумоизолирана входна врата.
Сградата е изпълнена с висок клас материали окачена вентилируема фасада, качествена топло - и хидроизолация, тераси с двоен под. Общите части са завършени с бял гранитогрес, парапетите са от закалено ламинирано стъкло, а асансьорите са безшумни, без машинно помещение.
Акт 16 се очаква през Юли 2026г.
За ваше улеснение, прилагаме схема на разпределение на имота.
Възможност за покупка на подземен гараж на цена между 30 000 и 35 000 евро.
За да резервирате своят час за оглед се обадете СЕГА и цитирайте този код: 141518.







