Имоти Премиер представя на Вашето внимание тристаен апартамент в с. Нови Хан. Новострояща се сграда разположена в централната част на селото и само на 10 мин. от гр. София.
Възползвайте се сега от възможността да закупите апартамент със схема на плащане 10 % на предварителен договор и 90 % на АКТ 16!!!
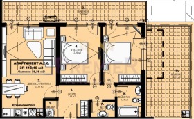
Сградата е с модерна и стилна визия с функционално разпределение и хубави площи. Непосредствено до парк, с добър достъп и в близост до супермаркет, училище, детска градина и изобщо всички нужни Ви комуникации и в същото време предоставя спокойна среда. Апартамента е разположен на етаж 3 от 5 със следното разпределение: входно антре, простона дневна с кухненски бокс, две не преходни спалня, баня с тоалетна, втора тоалетна, складово помещение и две големи тераси с изложение изток - юг. Отопленито на сградата е предвидено на Газ, както и изградение комуникации за климатична система. Най - доброто съотношение цена/качество за района. За удобство на бъдещи собственици на партерно ниво ще има търговска верига, аптека и търговски помещения.
код на обявата: 380374







