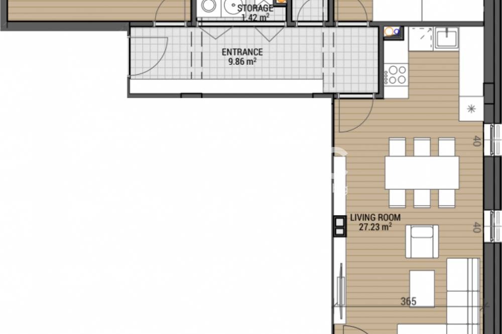
Тристаен апартамент на етаж ТРЕТИ със ЗП-104,95 кв.м., РЗП-126,42 кв.м., идеални части от парцела равняващи се на 109,55 кв.м. Разпределение: Дневен тракт с кухня, 2 спални, 2 бани с тоалетни, склад, лоджия. Изложение: Югозапад.
Четири триетажни сгради, част от затворен комплекс. Разположен в подножието на Витоша, комплексът предлага: над 50% озеленяване, контролиран достъп и видеонаблюдение, детска зона за игра, алеи за бягане, площадка за спорт. Спокойна среда и чист въздух. Зони за разхождане на домашни любимци. Изцяло изградена вътрешна инфраструктура. Паркинг за посетители. Барбекю зона. Пречиствателна станция от ново поколение.
С модерна архитектура, изцяло подчинена на използването на естествени материали, съчетаваща комфорт и висок стандарт.
Лесен достъп до главни пътни артерии - Околовръстен път.
Луксозни сгради, изключително висок клас строителство.
Камбаните е предпочитан район заради тишината, близостта до Витоша и модерното ново строителство. Локацията осигурява бърз достъп до Околовръстен път и южните части на София, което го прави подходящ както за живеене, така и за инвестиция.
Обади се сега и цитирай този код 684198







