АКТ 16!
ВКЛЮЧЕНИ ДВЕ ПОДЗЕМНИ ПАРКОМЕСТА И СКЛАД В ЦЕНАТА!
'РЕНОМЕ НЕДВИЖИМИ ИМОТИ' предлага тристаен апартамент в модерна сграда с отлично качество на строителството от доказан инвеститор - сграда на 'Нове Хоумс', на ул. Хайдушка Поляна 63. СТРАХОТНА ЛОКАЦИЯ!
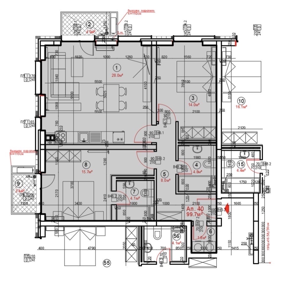
Жилището е с практично разпределение и много естествена светлина, което създава усещане за комфорт и уют. Състои се от:
✔ коридор
✔ просторна и светла дневна с кухненски бокс и трапезария
✔ две самостоятелни непреходни спални
✔ две бани с тоалетни
✔ мокро помещение
✔ две тераси
Застроената площ на апартамента е 99,70 кв.м, общи части - 19,13 кв.м, склад - 4.90 кв.м. Изложение - Юг/Изток/Запад.
Към апартамента се продават и две подземни паркоместа, включени в цената.
Сградата се отличава с:
модерна архитектура и луксозни общи части
контролиран достъп
висок клас материали и изпълнение
отлично поддържана среда
Имотът е подходящ както за лично ползване, така и за инвестиция с висока доходност.
КЛЮЧ В АГЕНЦИЯТА!
За огледи и повече информация се обадете на тел.0899589205







