Представяме Ви просторен тристаен апартамент с удобно разпределение, разположен в живописния град Поморие, район до Болницата и санаториума. Имотът е с обща площ от 88 кв. м и предлага отлична възможност за комфортно живеене или инвестиция.
СГРАДА:
Сграда с визия и комфорт. Жилищната сграда ще бъде изградена по съвременни стандарти, с внимание към детайла и качеството на използваните материали.
Проектът включва 6 (шест) етажа с асансьор и разнообразие от двустайни и тристайни апартаменти, като партерът е предвиден само за гаражи и паркоместа.
ЖИЛИЩЕ:
- Апартаментът е в строеж, като завършването на сградата и приемането са предвидени до месец май 2027 год. Степента на завършеност ще е 'до тапа'.
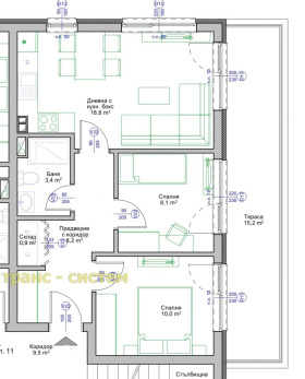
- Застроената площ е 78.41м2, а с общите части е 88.03м2. Състои се от две спални, просторна дневна, баня с WC, голямо антре с място за вграден гардероб, склад и голяма тераса на всички стаи, която предлага прекрасна гледка.
- Изложението на имота е предимно изток и североизток, което осигурява много естествена светлина през целия ден.
- В сградата има асансьор, което добавя удобство при достъпа до апартамента.
ОТОПЛЕНИЕ:
- Отоплението е на електричество, което е удобно и икономично решение.
ДОПЪЛНИТЕЛНИ УДОБСТВА:
- Към жилището получавате и 25.24м2 идеални части собственост от земята.
- Налични паркоместа около сградата. Възможност за закупуване на паркомясто от 12.50м2 на цена 17000 Евро.
Цена: 110,033 EUR с разсрочено плащане до завършване на строителството.
Този апартамент е идеален за тези, които търсят нов дом в близост до морето или желаят да инвестират в имот с потенциал за наем. Не пропускайте възможността да разгледате този имот! За повече информация и организиране на оглед, свържете се с нас. Вашият нов дом в Поморие ви очаква!





