НОВА СГРАДА!!! ЗАПОЧНАТО СТРОИТЕЛСТВО!!! ДОБРА ЛОКАЦИЯ!!
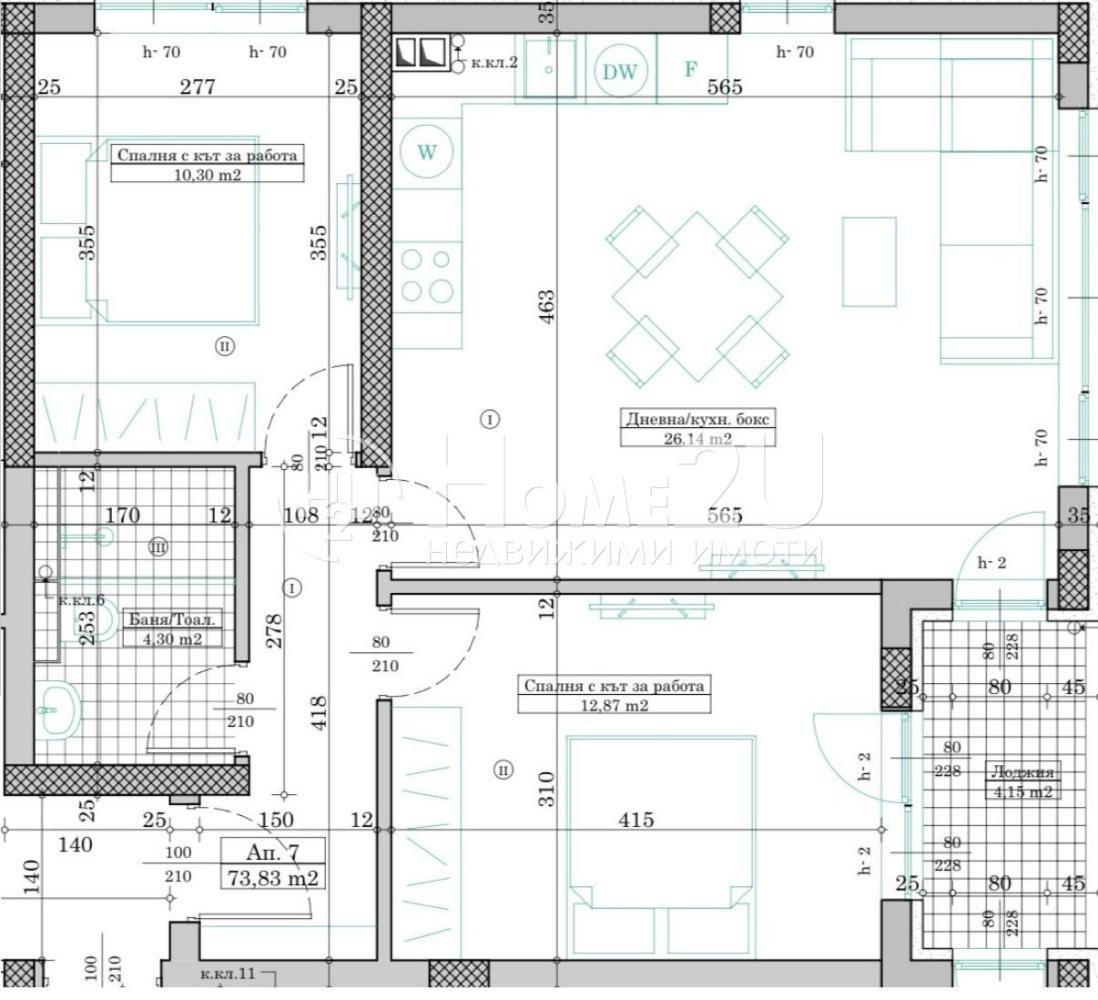
Представяме ви тристаен апартамент в новострояща се сграда в кв. Кайсиева градина, град Варна. Имота се състои от коридор, баня с тоалетна, две спални, дневен тракт с кухненска част с площ от 26 кв.м. и тераса с хубав простор. Имотът се намира на ключова локация, в непосредствена близост до булевард 3-ти Март и автобусна спирка, осигуряващи бърз и удобен достъп до всяка точка на града. Статут апартамент. Поетапно плащане. С правилни стени. За ваше улеснение, прилагаме схема на разпределение. Ако имате интерес към този имот, обадете се сега и цитирайте следния код: 141178







