ЕRА Младост предлага жилище в сграда пред акт 16, на пешеходно разстояние от метростанция Бизнес Парк , магазини Кауфланд , Фантастико , Технополис , Спорт Депо , КОМО . Без комисиона!
Сградата се състои от 3 входа с девет надземни и два подземни етажа с гаражи и паркоместа. На партера има апартаменти с обособени дворни места.
Фасадата ще е окачена от еталбонд и HPL облицовка, асансьори Orona, пет-камерна немска PVC дограма с троен стъклопакет, ТЕЦ, изградена климатична инсталация във всяко помещение, блиндирани пожаро устоичиви входни врати на Солид.
Разполагаме с едностайни, двустайни, тристайни и четиристайни апартаменти. Голяма част от апартаментите са с изглед към Витоша, с функционални разпределения. Комплексът е от затворен тип с жива охрана, видеонаблюдение и контрол на достъпа.
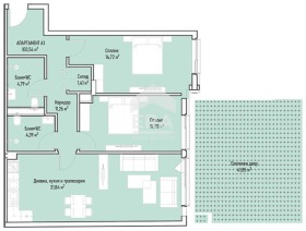
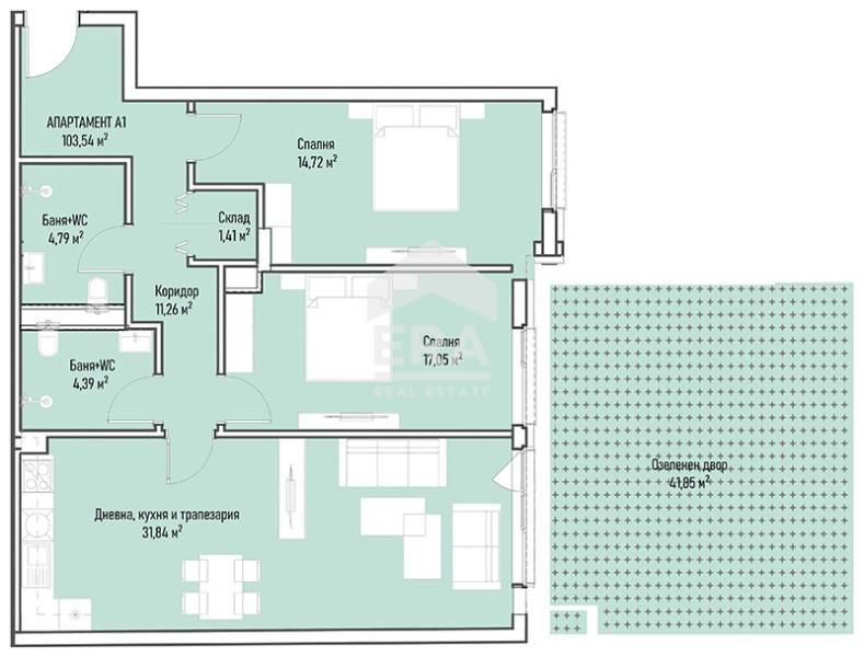
Жилището е със следното разпределение: входно антре, склад, дневна с отделен кухненски бокс, склад, две спални,три бани с тоалетни, тераса. Изложение: юг/север.
Сериозна и утвърдена строително-инвестиционна компания, печелила награди за реализирани проекти и сгради. Сигурност, качество, коректност и опит я отличават и характеризират в строителния бранш.
Дата за завършване на комплекса март на 2026г.
Предвидено е управление на общите части в комплекса, които включват цялостна организация, поддръжка и оперативен мениджмънт за комфортен престой на собственици на имотите в комплекса, с осигурена жива охрана и видеонаблюдение.
Месечната такса за поддръжка и управление в комплекса 0,61 евро без ДДС върху РЗП за апартаменти и 0,31 евро без ДДС за паркоместа и гаражи.
Схема на плащане при ползване на ипотечен кредит:
2 000 евро - стоп-капаро
20% - при подписване на предварителен договор
80% - с банков ипотечен кредит на нотариална сделка;
Схема на плащане със собствени средства:
2 000 евро - стоп-капаро
90% - при подписване на предварителен договор
10% - на нотариална сделка;
Инвеститорът работи с всички кредитиращи банки.
ЕРА България е независим кредитен посредник към БНБ с номер BCI000024 и предоставя безплатна консултация и съдействие при финансиране на избрания от Вас имот.
Оферта 0313508







