Агенция 'Имотен Център България' ви предлага 3-стаен апартамент в кв.Овча Купел Параметри на имота:
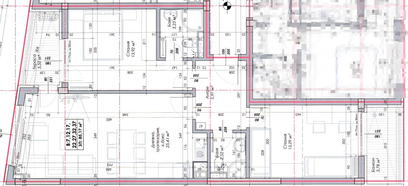
Обща площ: 100,83 кв.м
Чиста жилищна площ:85,17 кв.м
Етаж: 8
Изложение: Югоизток и северозапад
Предлагаме за продажба 3-стаен апартамент, находящ се в жилищен комплекс от три сгради. В комплекса е предвидена обща сграда с ресторант и фитнес, осигуряваща допълнителни удобства за бъдещите собственици.
Сградата е на етап Акт 14, като до края на 2026 година се очаква Акт 16. Проектът се реализира с висококачествени материали, а инвеститорът е с доказан опит и множество реализирани проекти.
Апартаментите се продават в степен на завършеност шпакловка и замазка. Жилищата са изключително функционални и подходящи както за семейно обитаване, така и за инвестиция с цел отдаване под наем.
За повече информация моля свържете се с отговорният брокер: Максим Дочев







