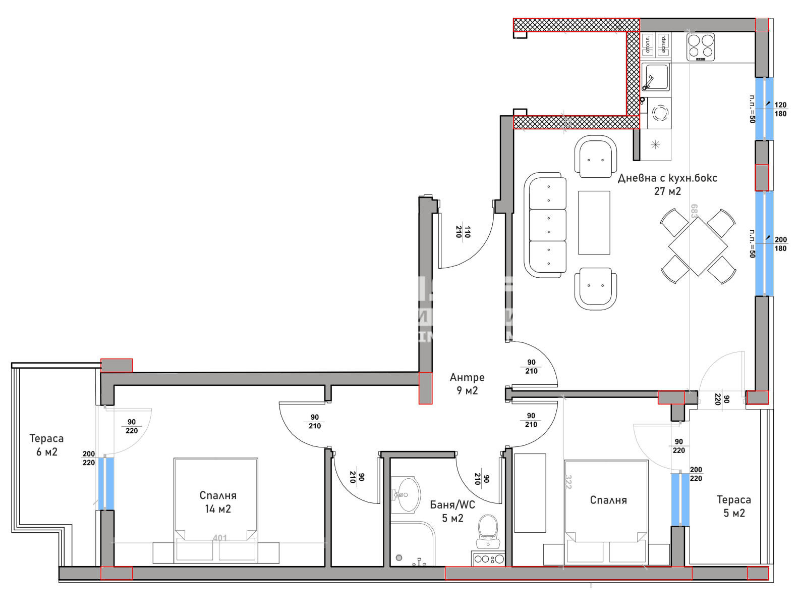
Оферта 68833 - Предлагаме ви тристаен апартамент в новоизграждаща се малка бутикова сграда, разположена на тихо и спокойно място в сърцето на кв. Въстанически! Жилището се състои от просторна дневна 27кв.м. със светъл кухненски бокс, две самостоятелни спални: родителска с площ от 14 кв.м. и детска, входно антре, голяма баня с тоалетна, перално помещение и две тераси. Изпълнението е с висококачествени материали, отговарящи на всички съвременни изисквания: червена тухла, 6 -камерна ПВЦ дограма с дървесен цвят, топло и хидроизолация - 10см., масивна входна блиндирана врата. Общите части и терасите ще са луксозно завършени с гранит, иноксови парапети и врачански камък. Сградата е се намира в близост до парк, детска градина, училище и удобен транспорт към централна градска част. Свободни външни паркоместа, подземни гаражи и партерни гаражи. Разсрочено плащане в рамките на строителството и възможност за закупуване чрез Банков Кредит !!! Приложените изображения са от готова сграда на строителната компания!







