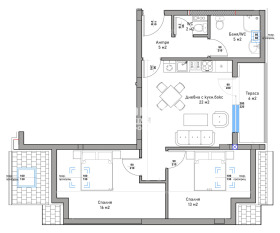
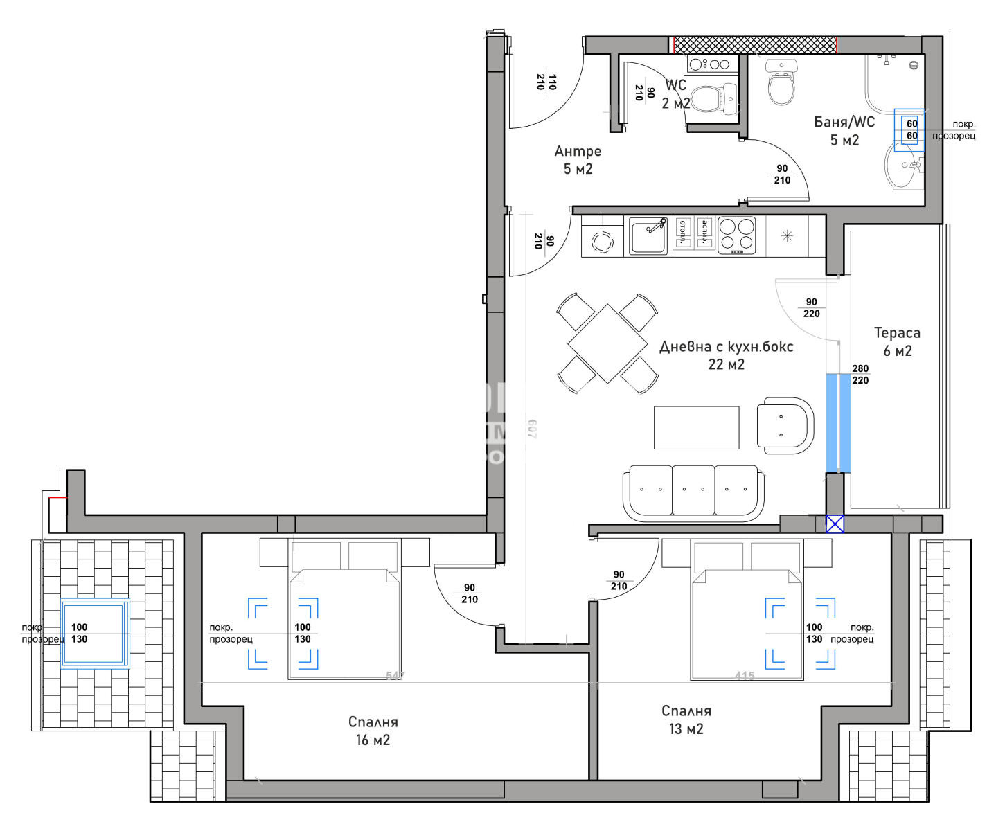
Оферта 68831 - Предлагаме ви тристаен апартамент с функционално разпределени в новоизграждаща се малка бутикова сграда, разположена на тихо и спокойно място в сърцето на кв. Въстанически! Жилището се състои от дневна с кухненски бокс и с излаз на тераса, две самостоятелни спални: детска 13.50кв.м. и родителска с площ от 16.30 кв.м., входно антре, голяма баня с тоалетна и втори санитарен възел. Изпълнението е с висококачествени материали, отговарящи на всички съвременни изисквания: червена тухла, 6 -камерна ПВЦ дограма с дървесен цвят, топло и хидроизолация - 10см., масивна входна блиндирана врата. Общите части и терасите ще са луксозно завършени с гранит, иноксови парапети и врачански камък. Сградата е се намира в близост до парк, детска градина, училище и удобен транспорт към централна градска част. Свободни външни паркоместа, подземни гаражи и партерни гаражи. Разсрочено плащане в рамките на строителството и възможност за закупуване чрез Банков Кредит !!! Приложените изображения са от готова сграда на строителната компания!







