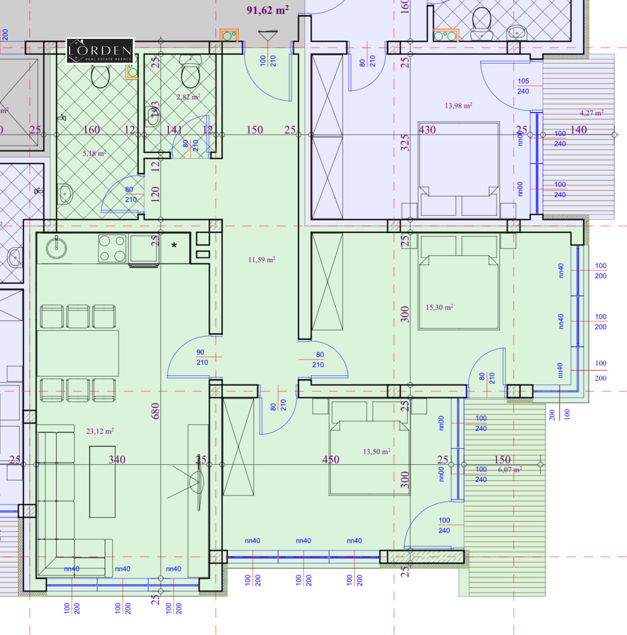
Агенция за недвижими имоти LORDEN продава тристаен апартамент с площ 91.62 кв.м. и 12.79 кв.м. идеални части от общите части на сградата, разположен на втори жилищен етаж в новоизграждаща се жилищна сграда на ул. Васил Априлов в град Пазарджик.
Площта на апартамента е функционално разпределена между дневна с трапезария и кухненски бокс, две спални, баня с тоалетна, отделна тоалетна, тераса и коридор.
Схема на плащане:
30% при предварителен договор
70% при Акт 16
Налични за продажба са двустайни и тристайни апартаменти, гаражи и складови помещения в новоизграждащата се жилищна сграда.
За повече информация относно цени, разпределение и начини на плащане посете офиса на агенцията на ул. Константин Величков 12.







