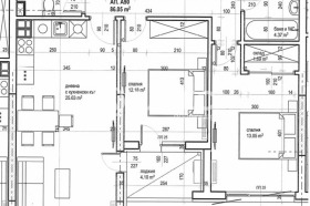
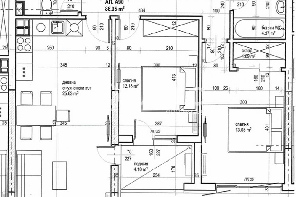
Впечатляваш и фуционален тристаен апартамент с впечатляваща панорама най-хубавия комплекс в Люлин.
Напреднало строителство пред акт 15.
Вторичен пазар! Последен тристаен с това разпределение.
Апартаментът се намира на осми етаж в 10 етажна жилищна сграда.
Изложение югоизток.
Сградата се намира близо до две училища, детска градина, магазини Billa и Lidl, спирки на автобуси 82, 108 и 310 и трамвай 8.
Комплексът се състои от две жилищни сгради със собствен парк с контролиран достъп. Предвидено е отопление на ток. Допълнително в двора ще бъде изградена детска площадка. поддръжката на сградите първата година е за сметка на инвеститора.
Изпълнение от най- висок клас с качествени материали. Фасада Baumit creative top, тухли Wienerberger, гранит в общите части и дизайнерско осветление.
Акт 16 - есента на 2026г.
Обади се сега и цитирай този код 681816







