Оферта 68390 - Предлагаме за продажба тристаен апартамент в нова сграда, разположен в ж.к. Тракия, на етап Акт 14.
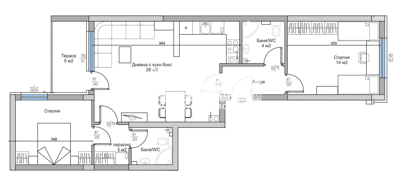
Имотът е с чиста площ 82кв.м, разположен на 7-ми етаж от 8, с отлична осветеност и функционално разпределение:
дневна с кухненски бокс - 28кв
две самостоятелни спални
две санитарни помещения и мокро помещение
коридор
тераса
Апартаментът се издава на шпакловка и замазка, което дава възможност за завършване и обзавеждане по индивидуален проект. Към него има и бонус избено помещение 4кв.
Сградата е модерно ново строителство, с асансьор и добре планирани общи части. Районът е предпочитан за живеене, с удобен достъп до училища, детски градини, магазини и градски транспорт.
Отличен избор за семейно жилище или инвестиция
За повече информация и оглед свържете се с нас.







