РОДАЖБА ДИРЕКТНО ОТ ИНВЕСТИТОРA! Представяме ви нова бутикова жилищна сграда VESS, находяща се в кв. Манастирски ливади - изток на ул. Луи Айер 95. Състояща се от 6 надземни жилищни етажа, само със 13 жилища.
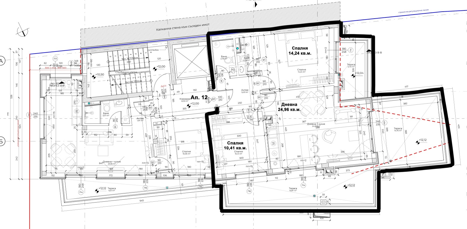
Обявената цена е за ТРИСТАЕН апартамент 12, състоящ се от:
- входно антре;
- дневна с кухненски бокс и трапезария;
- родителска спалня с баня и тоалетна;
- втора спалня;
- втора баня с WC;
- и три тераси;
находящ се на 5-ти жилищен етаж с кота +12,00 м. - АПАРТАМЕНТ 12 от чертежите - ЗП - 118,90 кв.м.; ОЗП - 145,28 кв.м. и прилежащ склад/мазе с площ от 3,84 кв.м. ИЗЛОЖЕНИЕ на имота - ИЗТОК/ЮГ
Предимства на проекта:
Бутикова жилищна сграда в полите на ВИТОША планина;
На пешеходно разстояние до Южен парк, BULGARIA Mall и PARADISE Mall;
Само 13 жилища в сградата;
Панорамна гледка (на по-високи етажи);
Предпочитан район за живеене с всичко необходимо за съвременен живот на пешеходно разстояние от: автобусни спирки, LIDL, DM, чисто нова 131 детска градина ФЛОРА , 7 ДГ Детелина , 104 ОУ Захари Стоянов , 73 СУ Владислав Граматик , 29 ДКЦ, супермаркет ДАР , Kaufland и множество други магазини, медицински заведения, обучителни центрове и частни детски градини и др.
Функционални разпределения;
Просторни жилища с добре осветени дневни;
Високи показатели на енергийна ефективност на сградата;
Осигурена възможност за закупуване на до 3 броя подземни паркоместа към всяко жилище;
Строително изпълнение:
Строителството се изпълнява с подбрани строителни материали с високо качество!
Тухлена зидария: външни стени: керамична тухла с дебелина 25 см.; вътрешни стени: керамична тухла с дебелина 12 см.;
Фасада: Окачена фасада с керамично покритие и топлоизолационна система, комбинация с фасадна структурна мазилка, съгласно проект; топлоизолация с дебелина минимум 10 см.;
Апартаменти: под - циментова замазка, стени и тавани - гипсова мазилка; монтирана входна блиндирана врата с падащ праг;
Гаражи: с автоматични врати;
Дограма - PVC профил Kömmerling със 7 камери и с троен стъклопакет, постигащ отлична енергийна ефективност, дълготрайност и шумоизолация;
Отопление: електричество;
Асансьор: 1 бр. за 6-8 лица - Schindler електрически с автоматични врати;
Общи части (Стълбище, етажни и междуетажни площадки, фоайе и коридори): подови настилки гранитогрес и метални парапети;
При необходимост бихме могли да Ви съдействаме с оферти от фирми извършващи довършителни работи, при преференциални условия за нашите клиенти.
Очаквани срокове на изпълнение:
Старт строителство - Септември 2024;
Образец Акт 14 - Ноември 2026;
Образец Акт 15 - Юли 2026;
Образец Акт 16 - Декември 2026;
ЗА ПОВЕЧЕ ИНФОРМАЦИЯ: WWW.ATLASINVEST.BG 0889 117 227; 0879 884 886;







