🔈БЕЗ КОМИСИОН - ЦЕНИ ДИРЕКТНО ОТ ИНВЕСТИТОР 🔈 ОФЕРТА: 14548
● Агенция за недвижими имоти 'ГОЛД ИМОТИ' Ви представя проект от четири секции на четири етажа в кв.Беломорски.
● Избор от едностайни двустайни и тристайни апартаменти с различни етажи и изложения.
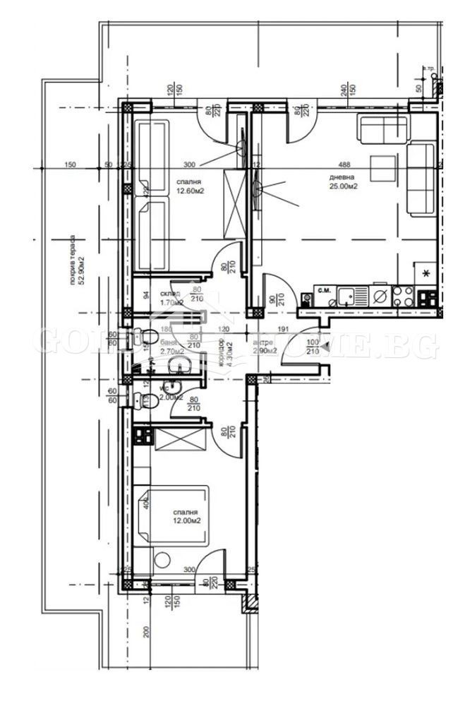
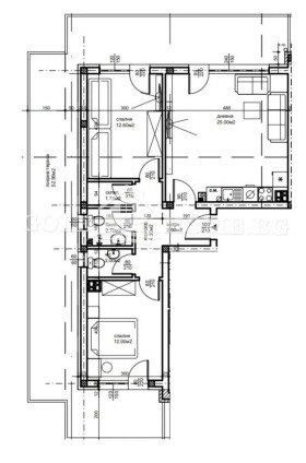
🛋️Разпределение:
Тристайните жилища се състоят от: входно антре, всекидневна с кухненски бокс, две спални, баня с тоалетна, отделна тоалетна, склад и тераса.
Налични модули:
-97,02 кв.м - 105 700 евро
-97,80 кв.м - 108 700 евро
-137,71 кв.м + 34,90 кв.м тераса - 112 900 евро
-134,75 кв.м +34,90 кв.м тераса- 128 400 евро
-146,71 кв.м +52,90 кв.м тераса- 131 700 евро
-147,46 кв.м + 52,90 кв.м тераса - 137 000 евро
-80,91 кв.м + 122,40 кв.м дворна веранда - 138 800 евро
🚗Паркиране:
Има възможност за покупка на паркоместа и партерни гаражи.
✅Степен на завършеност:
Жилищата се издават по БДС: шпакловка и замазка, ел. инсталация до ключ, ВиК до тапа, външна блиндирана врата, висок клас ПВЦ дограма.
📅 Срокове за изпълнение:
Очаква се въвеждане в експлоатация през лято 2028г.
🏗️За инвеститора и сградите:
- Сградите са ниски - 4 етажни, с малко апартаменти на етаж, което допълнително осигурява комфорт на живущите.
- Изпълнява се от инвеститор с опит в строителния бранш и вече завършени обекти.
📍Локация:
-Беломорски е квартал с модерен облик, спокойствие и потенциал, който съчетава близост до града и по-чист въздух. Подходящ е за хора, които предпочитат ново строителство и по-малко градски шум.
-Локацията осигурява бърз и удобен достъп до основни пътни артерии, Околовръстния път и посоката към Родопите, както и лесна връзка с централните части на града.
-Беломорски е отличен избор както за собствено жилище, така и за инвестиция, благодарение на нарастващото търсене и потенциала за бъдещо развитие.
➡️'ГОЛД ИМОТИ' Ви предлага да се възползвате от професионално кредитно посредничество чрез Credit Center при ипотека, потребителски кредит и рефинансиране!
-УСЛУГАТА Е ИЗЦЯЛО БЕЗПЛАТНА!
-ИЗГОТВЯНЕ НА НЯКОЛКО ОФЕРТИ ОТ ВОДЕЩИ БАНКИ!
-НАЙ-ИЗГОДНИ УСЛОВИЯ СПРЯМО ВАШИЯТ ПРОФИЛ!
-НЕ Е НЕОБХОДИМО ДА СЕ РАЗКАРВАТЕ ВЪВ ВСЕКИ КЛОН НА РАЗЛИЧНИ БАНКИ!
➡️ Още атрактивни и актуални оферти може да разгледате на нашият сайт : goldhome.bg
➡️За повече информация и при интерес за оглед, моля свържете се с нас.







