Ако си любител на височините и копнееш за панорамни гледки, които няма как да бъдат закрити от новостроящи се сгради, значи сме те намерили.
Forton Homes представя единствения по рода си проект в София - М Tower.
Тук първият жилищен етаж е на 35 метра над булеварда, а светлата височина на таваните е 3,1 метра на всяко жилищно ниво.
Тук фасадите са изцяло стъклени, а френските прозорци разкриват неповторими панорамни гледки.
Тук разполагаш с фитнес, ресторант, кафене, офиси, голям хранителен магазин, салон за красота на едно място.
Тук имаш бърз достъп до всяка точка на града, както и до най-търсените бизнес зони, не само с автомобил, а и чрез топла връзка с метро.
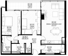
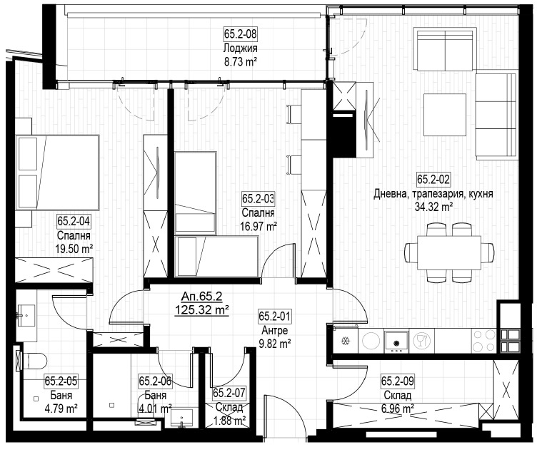
Предлагаме стилен тристаен апартамент с площ от 149 кв.м, на шестнадесетия етаж, със северно изложение.
Състои се от две големи спални, широко антре, просторна дневна с кухня и трапезария, две разкошни бани, две практични складови помещения и лоджия с прекрасна гледка.
Запознайте се с предимствата на този емблематичен проект:
- Модерна и елегантна многофункционална сграда с офисна и жилищна ритейл част;
- Несравними гледки, които носят усещане за свобода и простор;
- Единствената сграда с топла връзка към метро;
- Подземен паркинг с асансьор на 4 нива;
- Красиво озеленени градини и зони за почивка;
- Гарантирана сигурност с 24-часово видеонаблюдение и охрана
Цени от 2700 евро/кв.м без ДДС!
Свържете се с нас за индивидуална презентация!
Водещ консултант: София Димитрова
+359 884 334 430
[email protected]







