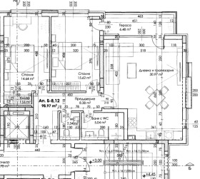
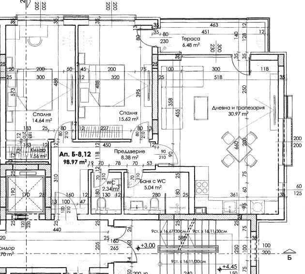
WP IIII B_8 AP - Продава се двуспално жилище с изложения С/З в новопостроена сграда на ул. Парк Отдих и култура , продължение на бул. 6 септември . Имотът се намира югозападно от Гребния канал, както е отбелязано на приложената карта със стрелка (56784.513.353.7). Сградата е на втора линия от улицата, четириетажна с асансьор (П+3), с общи части с мраморна настилка и декоративна ламперия, очаква се да бъде въведена в експлоатация до пролетта на 2026 година. Жилището е разположено на първи надпартерен етаж (партерният етаж е жилищен) и е със следното разпределение: дневна с трапезария и кухненски бокс, две спални, баня с тоалетна, тоалетна, тераса, коридор, изба, с разпределение и площи, съгласно приложената извадка от архитектурния план за жилището. Имотът е със застроена площ от 98.97 кв.м и прилежащи към него 18 кв. м общи части, и изба с площ 6.23 кв.м. Имотът се продава завършен до ключ, както следва: завършени и оборудвани санитарни помещения, положени подови покрития дъбов паркет и италиански гранитогрес, стени изправени, шпакловани, боядисани, монтирани интериорни врати, кухненско обзавеждане и оборудване. В жилището са заложени бойлери, климатични системи Дайкин, цялостно кухненско оборудване от Бош, в т.ч. миялна, а пералнята и сушилнята са Миле. Всички уреди са чисто нови, в гаранция.
*Към момента на публикуване на тази обява се извършват довършителните работи. Кухненското обзавеждане вече е монтирано. Снимките към обявата ще бъдат актуализирани.
Възможно е закупуване на паркоместа в подземен паркинг под сградата.
Цената за имота е в завършено състояние, съгласно описаното тук и с включено в нея ДДС.
Купувачите не дължат комисион за посредничество по тази сделка.
Огледи на имота се провеждат с предварителна уговорка.




