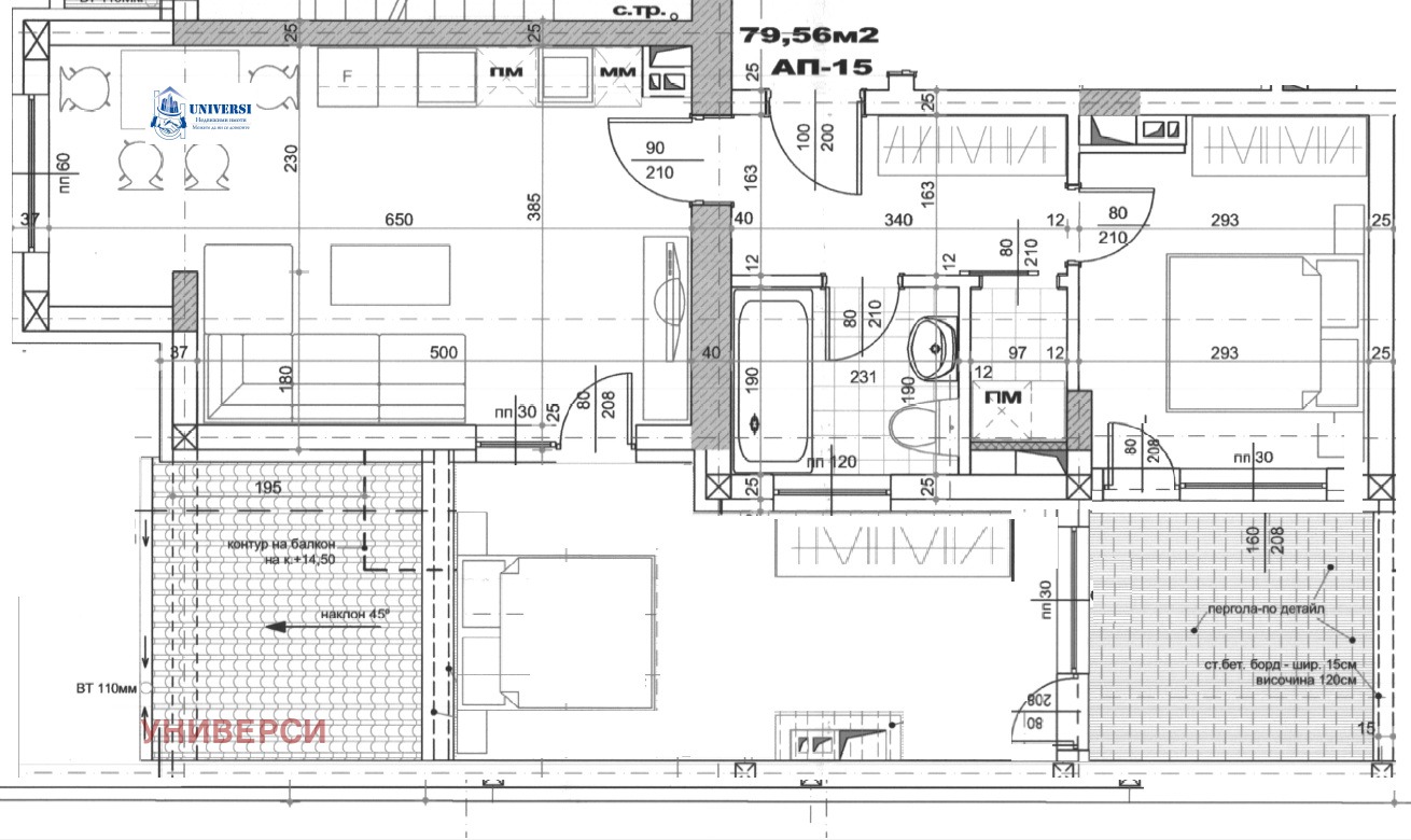
Продаваме много хубав, тристаен апартамент, със застроена площ от 79,56м2.
Жилището е напълно обзаведено и оборудвано.
Ползвано е две години, от което следи не са забележими.
Изложението е Изток/Юг/Запад.
Отоплението и топлата вода са осигурени от ТЕЦ. В жилищните помещения са монтирани климатици, а за периодите на профилактика има предвиден бойлер.
Сградата е въведена в експлоатация през 2021-ва година и е с много добре поддържани общи части. Намира се на ул. Царибродска 107.
В сградата продаваме общо шест подобно обзаведени апартамента 5 двустайни и един тристаен.
Имотите са собственост на фирма и цената е с включен ДДС.
Още наши оферти можете да намерите на www.universi.bg



