ИНВЕСТИТОР ПРОДАВА!!
Тристаен, апартамент в 3-етажна сграда с Разрешение за ползване от 2025 г.,
бул. Асеновградско шосе 4, к-с Колодрума.
В района - детска ясла, детска градина, училища, автобусни спирки.
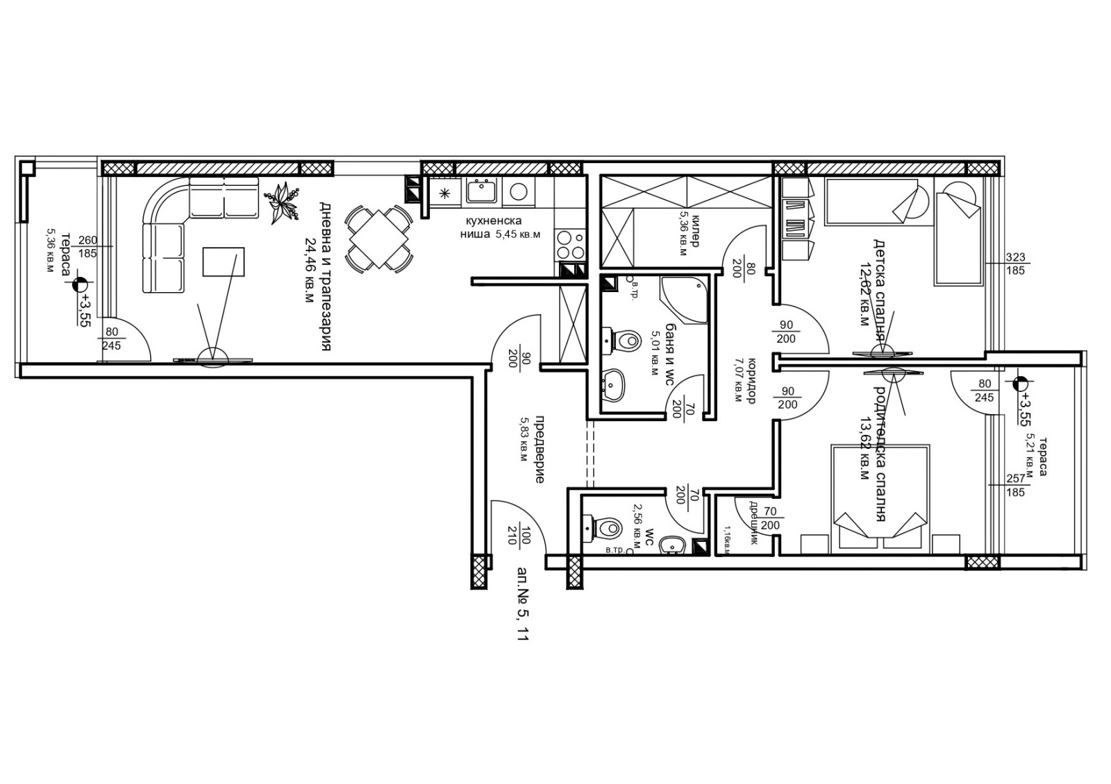
* Жилището се състои родителска спалня с дрешник, детска спалня, гардеробно, слънчева дневна с трапезария и кухненски бокс, две тераси, баня с тоалетна, втора тоалетна. Обща застроена площ 119 кв.м.
Сградата разполага с наземен и подземен паркинг. Акт 16.







