СГРАДАТА Е С АКТ 16!
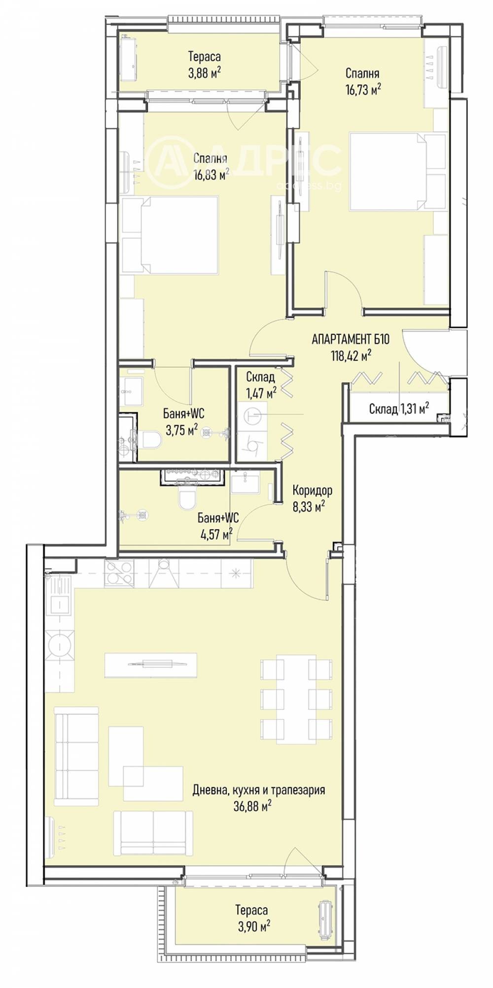
Огромен тристаен апартамент на етаж ЧЕТИРИ със ЗП 118.42 м2 и следното разпределение: антре, дневна с кухненски бокс и трапезария- 36,88м2, две спални всяка с площ над 16м2, две бани, склад/мокро и две тераси. ИзложениеЮ/С. Паркоместа подземни.
Съвременна жилищна сграда с изискана фасада и изпълнение на най-високо ниво. Красива визия, проектирани функционални разпределения на апартаментите. Очаквана дата за завършване на комплекса края на 2025 год.
Намира се в кв. 'Младост 4', само на крачка от метростанция и магазини 'Кауфланд', 'Фантастико', 'Технополис', 'Sport Depot' и 'Комо'. В непосредствена близост до сградата е Бизнес Парк 'София'.
Висококачествено строителство съобразено с най-модерните технологии в бранша, висок клас материали и оборудване от водещи производители в световен мащаб.
Отлична локация. Качество на строителството. Поддръжка.
Обади се сега и цитирай този код 638711







