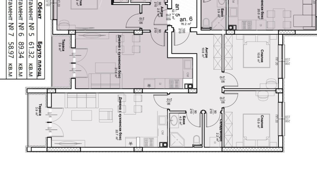
ИМОТ No: 636
Продава 3-СТАЕН апартамент, ново тухлено строителство - в процес на строеж, пред АКТ 14, в град Кърджали, квартал Възрожденци, в района на Бл. 62. Жилището е с обща площ 89.34 кв.м. и се състои от антре, всекидневна с кухненски кът, две спални, баня с тоалетна, склад-мокро помещение и тераса. Имота е разположен на 1-ви жилищен етаж.
Цена: 84 900 евро.







