? Реф. 37727
БЕЗ КОМИСИОНА ОТ КУПУВАЧА!
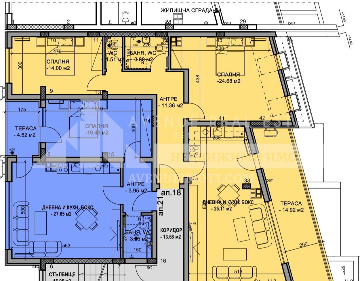
АВЕНЮ ИМОТИ Ви представя апартамент в новострояща се сграда, разположена на една от най-желаните локации в Пловдив кв. Смирненски, в непосредствена близост до болница Селена .
Имотът предлага удобно и функционално разпределение, като отличната локация го прави изключително подходящ както за живеене, така и за инвестиция.
? Новострояща се модерна сграда
? Възможност за избор на етаж и квадратура
? В близост до болници, училища, детски градини и търговски обекти
? Отлична комуникация и транспортна достъпност
? Гъвкави схеми на плащане
? За повече информация, планове, схеми на плащане и други детайли, свържете се с нас, за да уговорим среща в офиса на АВЕНЮ ИМОТИ.
? БОНУС Безплатно кредитно съдействие!
АВЕНЮ ИМОТИ предлага професионално кредитно посредничество чрез Credit Center при ипотечни, потребителски кредити и рефинансиране.
? Услугата е изцяло безплатна!
? Изготвяне на няколко оферти от водещи банки!
? Най-изгодни условия според Вашия профил!
???? Без нужда от посещение на различни банкови клонове!







