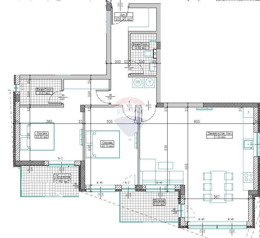
Предлагаме Ви просторен тристаен апартамент за продажба в новострояща се сграда в ж.к. Кайсиева градина, град Варна.
Жилището е разположено на трети етаж в шестетажна сграда, без отстъпи и крайни стени. Сградата е предвидена да бъде с асансьор от партерно ниво и контролиран достъп.
На чиста жилищна площ от 108,51 кв.м са разпределени:
* всекидневна с кухненска част /37,31 кв.м./ и излаз на тераса /6,12 кв.м./ с изложение югозапад/югоизток;
* родителска спалня /15,30 кв.м./ със самостоятелна баня с тоалетна /3,57 кв.м./ и излаз на тераса /2,6 кв.м./ с изложение югозапад;
* детска стая /13,70 кв.м./ с излаз на тераса /6,12 кв.м./с изложение югозапад;
* втори общ санитарен възел /3,61 кв.м./;
* широк коридор.
Към имота има 12,94 кв.м. идеални части от общите части на сградата, както и 47,73 кв.м. идеални части от поземления имот, в който е построена сградата. Има възможност за закупуване на открито паркомясто във вътрешния двор на сградата.
Сградата се характеризира с качествено строителство и модерна архитектурна визия, а районът предлага бърз достъп до удобства и градска инфраструктура. Очаквано въвеждане в експлоатация на сградата юни 2028г.



