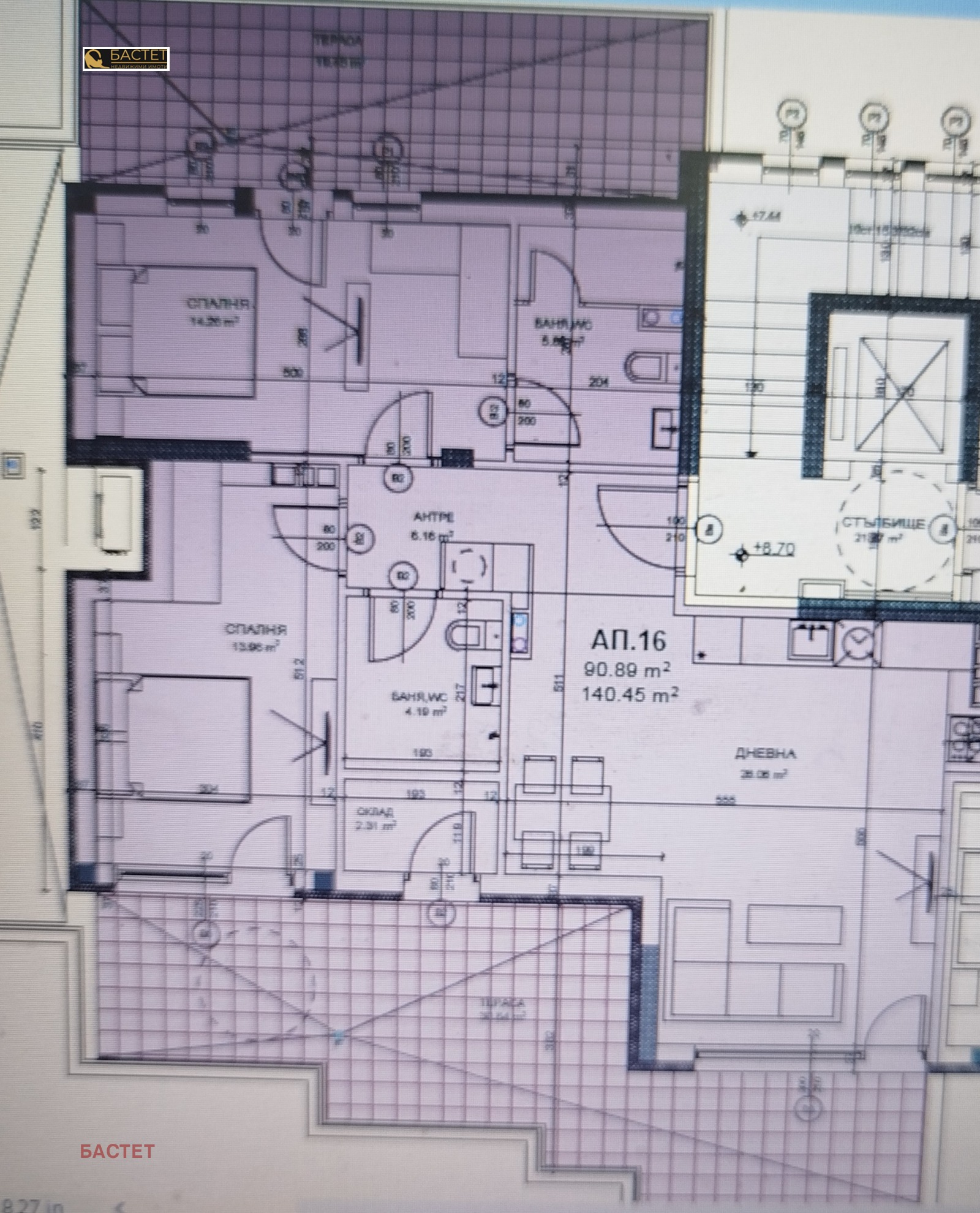
БЕЗ КОМИСИОННА ОТ КУПУВАЧА! БУТИКОВА СГРАДА СЪС 17 АПАРТАМЕНТА. Красива панорамна гледка. Просторен и светъл тристаен апартамент със ЗП 140.45 кв.м., разпределени, както следва: покрита част 90.89 кв.м и две панорамни тераси с обща площ 50 кв.м. Състои се от входно антре, дневна с трапезария и кухненски бокс с прилежаща тераса на запад, две спални с втора тераса, баня с тоалетна и втора баня с тоалетна към едната спалня, склад. Изложение: и/з. Сградата ще бъде газифицирана, но има и изводи за климатици.
Сградата е с достигнат Акт 14 и издадено Удостоверение по чл.181 от ЗУТ. Очаква се да бъде завършена и въведена в експлоатация до края на 2026 г.
Етапи на плащане:
30% На предварителен договор
50% на Акт 14- чл.181 при прехвърляне
10% на Акт 15
10% на Акт 16.
Възможност за закупуване /не е задължително/ на:
склад - 3000 евро;
подземни паркоместа - 30000 евро;
гаражи - 30000 евро.
Сградата се намира в близост до Ортопедичната болница, Глория палас, бул. Никола Петков, спирки на автобуси 260, 103, 111.
Можем да организираме оглед в удобна за вас време. Съдействие за кредитиране. За контакти и повече информация: 0988921982; 0897565147.



