Компания Х представя на Вашето внимание тристаен апартамент в центъра на Бургас.
МЕСТОПОЛОЖЕНИЕ: Центърът на Бургас предлага уникално съчетание от морски пейзажи, културни забележителности и модерни търговски възможности, което го прави привлекателно място за живеене и туризъм.
СТРОИТЕЛСТВО: Апартаментът е разположен на четвърти етаж, тухла.
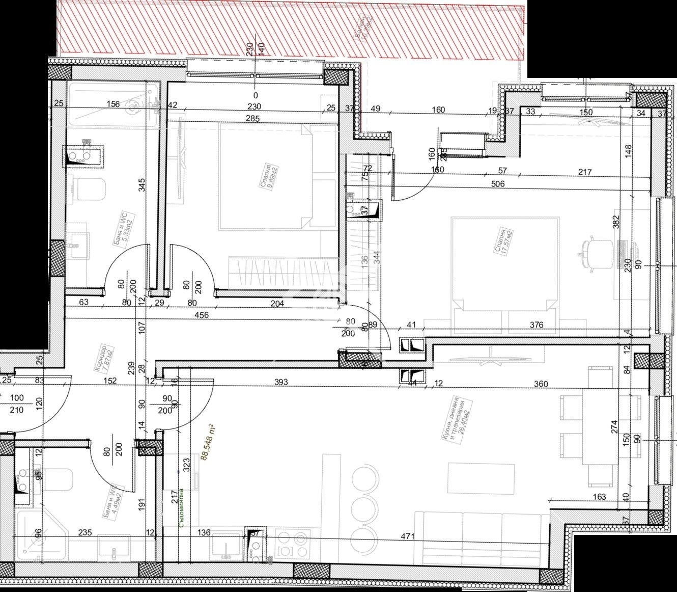
РАЗПРЕДЕЛЕНИЕ: Жилището разполага с площ 129.16 кв.м., състои се от хол с кухня, две спални, две бани с тоалетна и тераса.
СЪСТОЯНИЕ: Имотът се предлага както на тапа, така и на степен до ключ, което Ви дава възможността да го усторите по Ваш вкус и да го превърнете в мечтания дом!
Заповядайте да Ви го покажем. Използвайки нашите услуги Вие ще превърнете закупуването на новия си дом в едно приятно изживяване, ще получите персонален консултант, съдействие при кандидатстване за кредит от всички банки в България, интериорни дизайнери и екип, който да се погрижи за нужните документи по Вашата сделка. На Ваше разположение сме всеки ден, от понеделник до неделя от 09:00 до 20:00ч. Възползвайте се от безплатна консултация в наш офис, където ще ви спестим време и ще ви запознаем с всички актуални имоти в България, отговарящи на Вашето търсене. Свържете се с нас на 0887779990 или на 0882009283 и цитирайте кода към имота: 999-29259.







