Започва изграждането на нов проект, разположен в близост до Кауфланд- 2 и парк Бедечка.
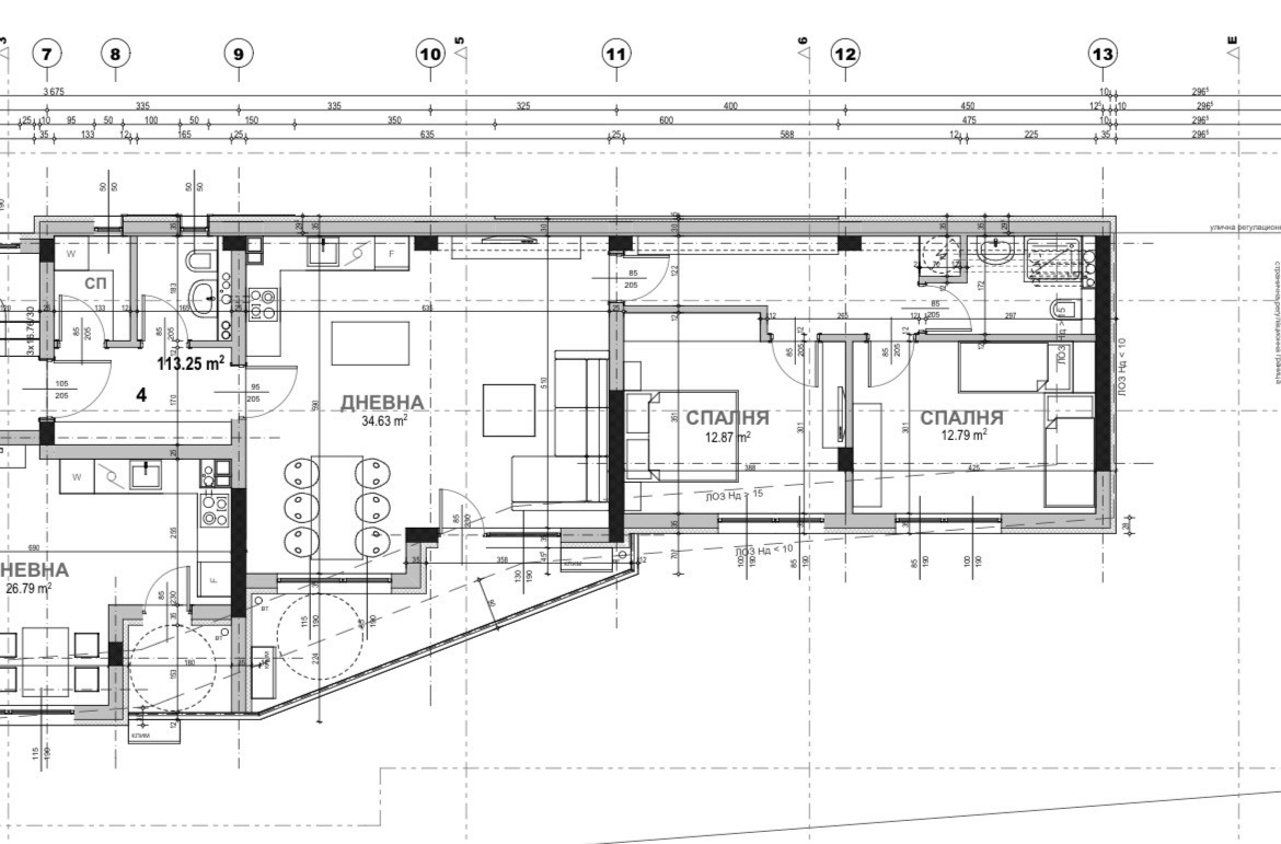
В продажба е апартамент с ползваема площ от 113,25 кв.м, разпределена между: две спални, дневна с бокс, два санитарни възела, складово помещение, тераса.
Степен на завършеност:
- Дневна и спални: под- ламинат; стени: латекс;
- Коридор: под- теракот; стени: латекс;
- Санитарни възли: под- теракот; стени: фаянс;
- Тераса: под: теракот; стени: топлоизолация;
- Складово помещение: под- теракот; стени: латекс.
Pvc дограма, интериорни и входна врати.
По външните плоскости на фасадните стени, по таваните над проходи и под еркери, както и в настилките на тераси върху отопляеми помещения ще се положи топлоизолация с дебелина съобразно предвиденото с проекта в част Енергийна ефективност .
Под подовата настилка във всички бани, тоалетни и кухня - хидроизолация.
Възможност за закупуване на паркомясто или гараж на ниво партер.
Гъвкава схема на плащане, съобразена с етапите на строителство и желанието на купувача.
Нискоетажна, кокетна сграда, с предвидени качествени, съвременни технологии и енергийна ефективност.
Срок за завършване: 2028г.
Районът е с отлична инфраструктурна мрежа, зелени площи, в близост хранителни вериги и учебни заведения.
Съдействаме при необходимост за получаване на ипотечен и/или потребителски кредит от банка. Услугата е безплатна и необвързана с покупка на имот.







