БИЛДИНГ БОКС предлага 3-стаен апартамент в проект 'Чар' - ж.к. 'Люлин 8'
Имот:
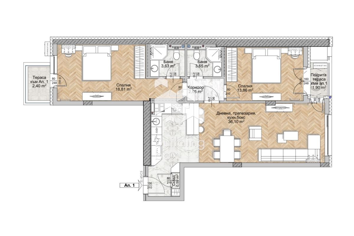
Апартаментът е със застроена площ от 95.95 кв.м., с изложение изток-запад и е част от нова модерна тухлена сграда, която ще бъде въведена в експлоатация през 2028 г.
Жилището е разположено на партерен етаж от общо 9. Отоплението е на ТЕЦ.
Има опция и за закупуване на паркомясто или гараж на цени от 18 500 евро.
Разпределение:
- Хол с кухненски бокс;
- Две спални;
- Две бани с тоалетна;
- Входно антре
- Две покрити тераси
Локация:
Ж.к. 'Люлин 8' стратегическо разположение между метростанциите 'Люлин' и 'Сливница'. Бърз достъп до множество автобусни линии, хипермаркети, кооперативния пазар, магазини за техника и дома, клиники, аптеки, болници, паркове и учебни заведения.
Предимства на проекта:
1. Сграда с 59 апартамента: двустайни, тристайни и ателиета;
2. Изключително сигурен и доказан строител с безупречна репутация и многобройни реализирани обекти (офиси, магазини, апартаменти и гаражи);
3. Липса на индексация в договорите;
4. Изпълнение с висококачествена минерална мазилка;
5. Френски прозорци с трислоен стъклопакет;
6. Асансьори 'KONE' за 8 10 човека;
7. Ново тухлено строителство с очакван акт 16: края на 2028 г.;
8. Функционално и комфортно разпределение;
9. Подходящо за лично ползване и инвестиция.
БИЛДИНГ БОКС предоставя безплатна консултация и съдеиствие при финансиране на избрания от Вас имот.
Оферта 28382







