LUXIMMO FINEST ESTATES: www.luximmo.bg
Представяме тристаен апартамент от 119.91 кв.м за продажба, в нов жилищен комплекс от затворен тип с богато озеленени територии в кв. 'Манастирски ливади - Изток'. Местоположението е в южната и най-слънчева част на квартала, в близост до бъдещ речен парк.
Комплексът е проектиран с внимание и грижа, готов да осигури на своите обитатели спокойна обстановка за живот в тиха и зелена среда.
Очаквано завършване - януари 2026 г.
Имотът е разположен на 5-и етаж от общо 6.
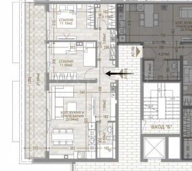
Жилището е функционално и просторно:
коридор, баня/тоалетна;
дрешник, две спални;
хол с кухня и трапезария и тераса с излаз от всички стаи.
За комплекса
Комплексът се състои от четири сгради на по 6 етажа, с проектирани офиси и апартаменти от типа двустаен, тристаен, четиристаен и многостаен. Имотите са с функционални разпределения, като повечето са ориентирани на юг, югоизток и югозапад, и разполагат с гледки към Витоша. Жилищата на ниво партер разполагат със собствени дворове, а тези на последните нива - с прекрасни просторни тераси.
Паркирането е решено изцяло на две подземни паркоместа, което позволява свободния външен терен, с площ около 3000 кв.м, да бъде богато озеленен и с контролиран достъп, което да допринася за комфортната и сигурна среда за живот.
Технически характеристики:
монолитна стоманобетонна конструкция, проектирана по Еврокод;
зидаря изцяло с керамични блокове, тип Wienerberger;
покрив с 16 см топлоизолация HPS, замазки с наклони вътрешно отводняване; два пласта с вносни материали. Гаранция на покривна система 15 години;
5-камерна PVС дограма, двоен стъклопакет, с външно слънцезащитно стъкло с дебелина 6 мм;
алуминиеви външни и вътрешни парапети;
външна топлоизолационна система 10 см EPS и/или вата и керамични тухли и композитен материал по архитектурен детайл на лепене и/или вентилирани;
хидроизолация на подземни гаражи по стени, подфундаментни плочи и по хоризонтал на вътрешен ...
За повече информация свържете се с нас и цитирайте референтния номер на имота. Моля, кажете, че сте видeли обявата в този сайт.
Референтен номер: SOF-121261
Тел: 0882 817 554, 02 425 69 15
Отговорен брокер:Петя Жабилова
Без комисиона от купувача







