Екип SART Ви предлага за продажба тристаен апартамент в Цветен квартал, гр. Варна.
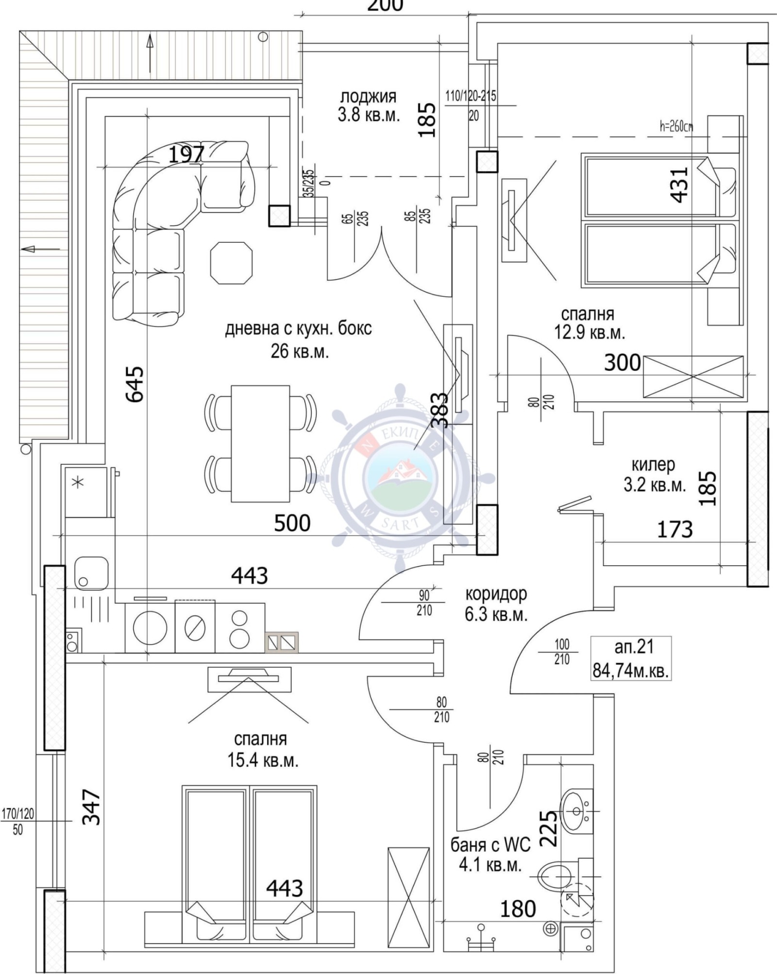
Жилището се намира на шести етаж от седем и се състои от дневна с кухненски бокс, 2 спални, баня с тоалетна, килер, коридор и лоджия. Изложението е Изток - Североизток. Възможност за закупуване на подземно паркомясто или партерен гараж.
Модерна сграда с начално строителство през Март 2025 г. Сградата ще бъде изградена със съвременен дизайн и качествени материали, съвременни технологии и енергийна ефективност. Проектът разполага с двустайни и тристайни апартаменти, както и четиристаен апартамент на 7 етаж, които ще се издават по БДС. Доказан инвеститор предлагащ гъвкави схеми на плащане и възможност за банков кредит.
БЕЗ комисионна от страна на купувача. Продажби директно от инвеститора!
Локация: В района се намират училище, ЦДГ 'Карамфилче', детска площадка , супермаркети, както и други магазини,близо до спирки на градски транспорт, лесен достъп до главни булеварди, което прави ежедневието по-лесно и удобно. Районът предоставя комфорт в съвременния живот с достъп до всичко необходимо.







