Референтен номер: LXH-132873
Предварителни продажби.
Старт на строителството - септември 2025 г.
Срок на завършване - 2 години.
Представяме за продажба тристаен апартамент в жилищна сграда в широкия център на Бургас.
Покупка без комисиона.
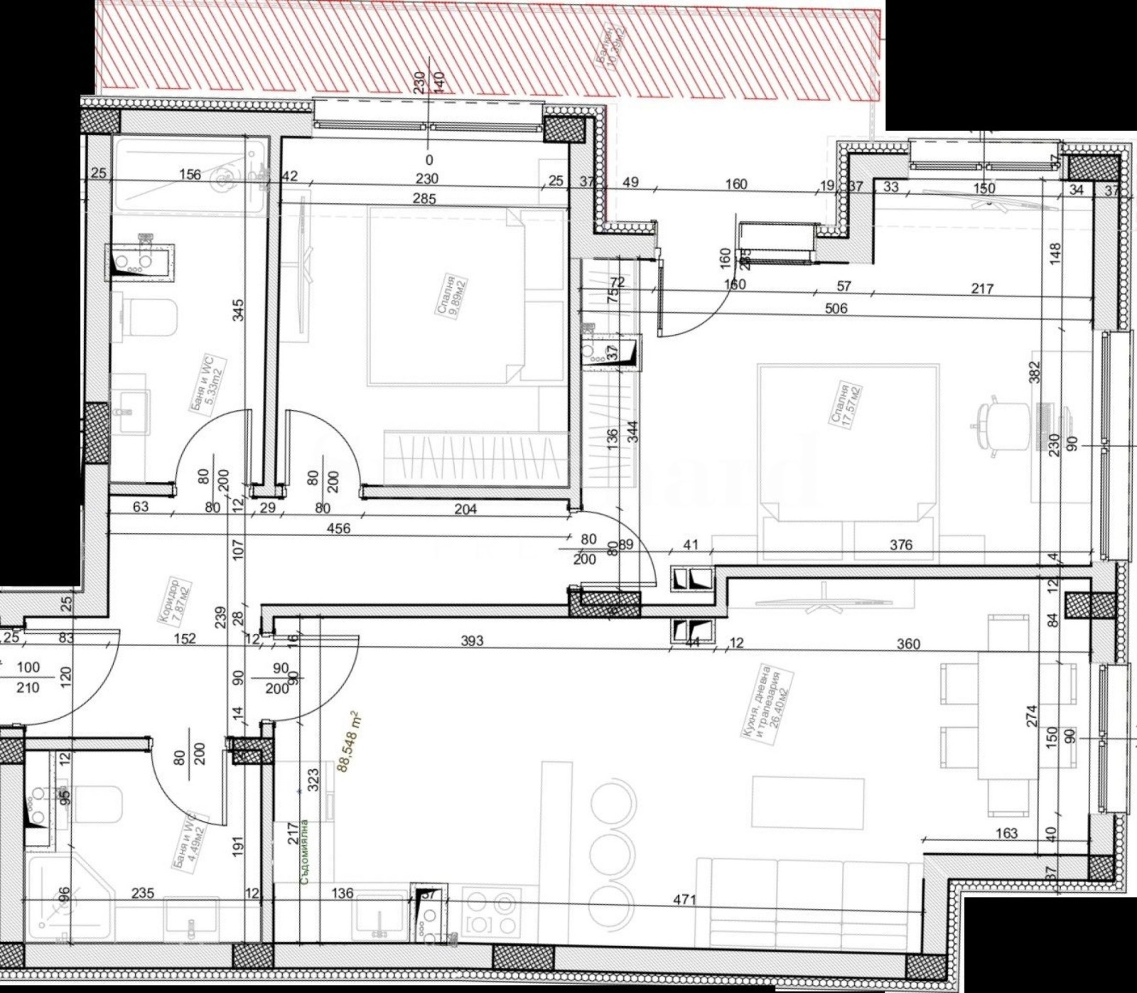
Имотът е с обща площ от 129,16 кв.м, разположен на 4-ти етаж, със следното разпределение:
антре/коридор - 7,87 кв.м.
кухня с трапезария - 26,40 кв.м.
спалня - 9,89 кв.м.
втора спалня - 17,57 кв.м.
баня с тоалет - 5,33 кв.м.
баня с тоалет - 4,49 кв.м.
тераса - 10,39 кв.м.
Към жилището има прилежащо избено помещение с площ от 5,77 кв.м. Издава се в степен на завършеност по БДС, на шпакловка и замазка.
Сградата ще бъде с модерна архитектура, качествено строителство, с асансьор, контролиран достъп и озеленени околоблокови пространства. Има възможност за закупуване на гараж или паркомясто допълнително.
Локация
Кооперацията е ситуирана в централна градска част, с достъп до всички удобства и инфраструктура, в непосредствена близост до главни булеварди, градски транспорт, магазини, училища, детски градини, здравни и административни институции.
Очакваме Вашето запитване
Ако желаете да организирате оглед на имот, който Ви интересува, или да посетите някой от нашите офиси, моля свържете се с нас. За да уговорите ден и час за среща или оглед, можете да се обадите на посочения в обявата телефон или да изпратите запитване чрез електронната поща. Нашият консултант ще Ви съдейства с всички необходими подробности и ще уговори удобно за Вас време.
Търсите подходящия за Вас имот?
Не се колебайте да се свържете с нас и да ни разкажете за Вашите нужди и предпочитания. Нашият екип ще проведе задълбочено проучване на пазара, за да Ви предложи имоти, които точно отговарят на Вашите критерии. Разполагаме с изключително портфолио от висококачествени и ексклузивни жилища, които са достъпни само за нашите клиенти. За да сте ...
За повече информация свържете се с нас и цитирайте референтния номер на имота. Моля, кажете, че сте видeли обявата в този сайт.
Референтен номер: LXH-132873
Тел: +359 889 007 010
Моб: +359 877 777 888 (WhatsApp, Viber, SMS)
Отговорен брокер:Стоунхард ПРЕМИЪР
Без комисиона от купувача







