Stonehard PREMIER: www.stonehardpremier.bg
Моля, кажете, че сте видeли обявата в този сайт.
Референтен номер: SOF 116492
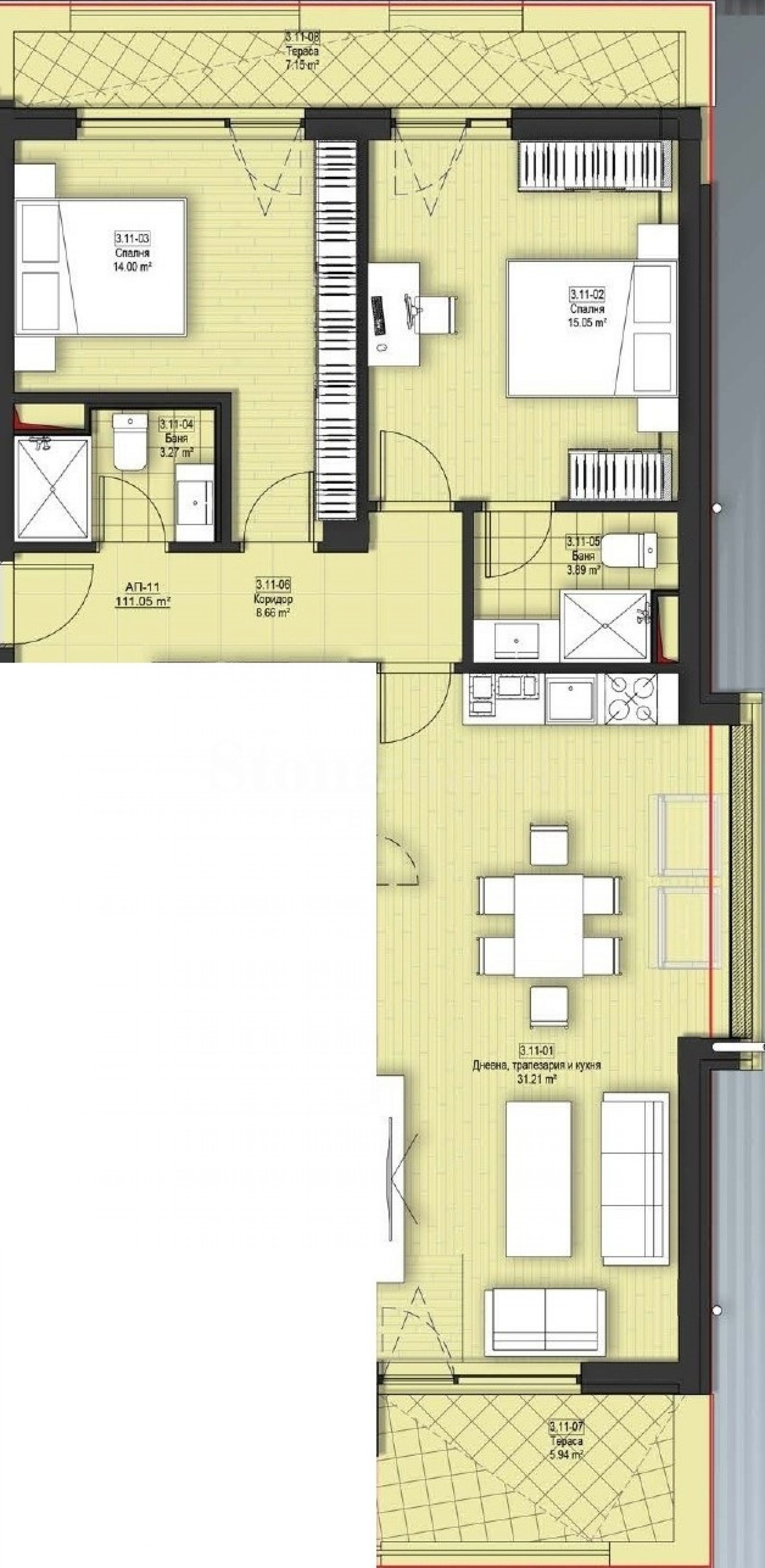
Представяме за продажба тристаен апартамент в бутикова сграда в строеж, на етап - Завършен - с АКТ 16. Разположена е в с.Лозен, на ул.Съединение, в близост до центъра на селото, Общината, до спирки на градски транспорт и търговски обекти. Имотът предоставя уникална възможност за съчетание на градския и природния живот. Близкостта до автомагистрала 'Тракия' прави този имот подходящ за хора, които пътуват често и се нуждаят от бърз достъп до главните пътища. За 5 мин. с кола се стига до метростанция Експо център на бул.Цариградско шосе, а за 7 мин -до метростанция Бизнес парк в Младост 4.
Апартаментът се предава на шпакловка и замазка и предоставя възможност за персонализация и избор на материали и интериорни решения.
Имотът е разположен на четвърти етаж и се състои от просторна дневна с тераса на изток и северен прозорец (30кв.м.), две спални със северозападно изложение(15кв.м. и 18кв.м), едната спалня разполага със собствена баня, тераса на която се излиза и от двете спални, има и втора баня.
Имотът се продава без комисион от купувача.
Жилищната сграда се изпълнява с първокласни материали по еврокодове и европейски стандарт, с паспорт за енергийна ефективност.
Предлагат се за продажба и други двустайни и тристайни апартаменти с възможност за преустройства по желание клиента.
Паркирането в сградата е организирано в приземни гаражи и външни паркоместа.
Лозен се намира близо до столицата, което означава лесен достъп до градските удобства, работни места и културни атракции. Това може да бъде предимство за хората, които искат да бъдат близо до градския живот. Селото предлага живописни гледки и възможности за планински туризъм, което може да бъде привлекателно за любителите на природата и хората, които търсят спокойствие и свеж въздух.
В района се намира Църквата 'Свети Георги' - това е историческа църква, която датира от 18-ти век и предлага ...
За повече информация свържете се с нас и цитирайте референтния номер на имота. Моля, кажете, че сте видeли обявата в този сайт.
Референтен номер: SOF 116492
Тел: +359 889 007 010
Моб: +359 877 777 888 (WhatsApp, Viber, SMS)
Отговорен брокер:Стоунхард ПРЕМИЪР
Без комисиона от купувача







