Референтен номер: LXH-134384
Предварителни продажби.
Старт на строителството - октомври 2025 г.
Очакван Акт 16 - октомври 2027 г.
Представяме за продажба тристаен апартамент в нова, жилищна сграда с модерна визия, близо до морския бряг и центъра на Поморие.
Локация
Сградата ще бъде разположена в спокоен, но в същото време добре развит район. На няколко минути от лечебни кални бани, медицински центрове, плажна ивица, футболен стадион, централната част на града, както и множество магазини, ресторанти и други удобства за комфортен живот.
Покупка без комисиона.
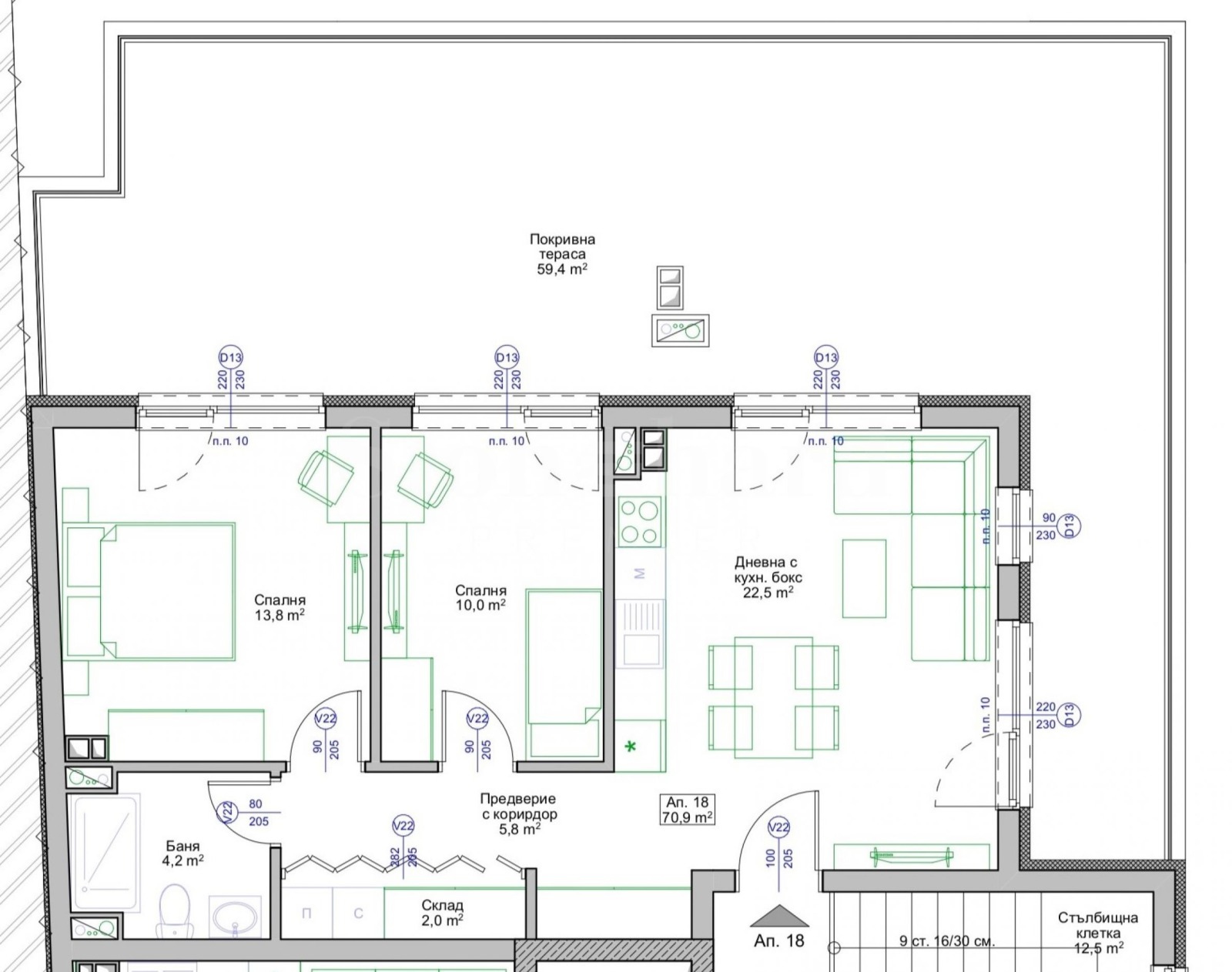
Имотът е с обща площ от 144,22 кв.м, разположен на 6-и етаж с панорамна тераса от 66,47 кв.м и изложение североизток.
Разпределение:
антре/коридор;
дневна с кухня;
две спални;
баня с тоалет;
склад;
просторна тераса.
Жилището ще се издава в степен на завършеност по БДС, по съвременни стандарти, с внимание към детайла и качеството на използваните материали.
Без такса поддръжка.
Очакваме Вашето запитване
Ако желаете да организирате оглед на имот, който Ви интересува, или да посетите някой от нашите офиси, моля свържете се с нас. За да уговорите ден и час за среща или оглед, можете да се обадите на посочения в обявата телефон или да изпратите запитване чрез електронната поща. Нашият консултант ще Ви съдейства с всички необходими подробности и ще уговори удобно за Вас време.
Търсите подходящия за Вас имот?
Не се колебайте да се свържете с нас и да ни разкажете за Вашите нужди и предпочитания. Нашият екип ще проведе задълбочено проучване на пазара, за да Ви предложи имоти, които точно отговарят на Вашите критерии. Разполагаме с изключително портфолио от висококачествени и ексклузивни жилища, които са достъпни само за нашите клиенти. За да сте първите, които ще получите информация за тях свържете се с нас.
Допълнителни услуги
Като ценен клиент на нашата компания, Вие ще имате ...
За повече информация свържете се с нас и цитирайте референтния номер на имота. Моля, кажете, че сте видeли обявата в този сайт.
Референтен номер: LXH-134384
Тел: +359 889 007 010
Моб: +359 877 777 888 (WhatsApp, Viber, SMS)
Отговорен брокер:Стоунхард ПРЕМИЪР
Без комисиона от купувача







