Референтен номер: AP 131260
Представяме апартамент в новострояща се жилищна сграда разположена в близост до Нов Български университет и метростанция 'Мизия', съвременен жилищен проект, който обещава да стане привлекателно място за живеене за хора от различни възрасти и с различни нужди.
Районът е динамичен и добре развиващ се, с бърз достъп до основни транспортни артерии, което прави придвижването до централната част на града и около него изключително удобно. В близост до комплекса се намират разнообразни магазини, кафенета и ресторанти, които предлага широк спектър от услуги.
Проектът включва различни типове жилища от двустайни до четиристайни апартаменти, с квадратури, вариращи от 51 до 140 кв.м. Всеки апартамент разполага с подземно паркомясто и мазе, което добавя допълнителна стойност и удобство за бъдещите собственици.
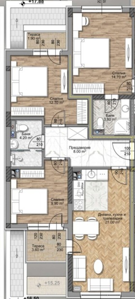
Апартаментът е тристаен, с обща площ 90.01 кв.м. (нетна площ 73.75 кв.м. + общи части 16.26 кв.м.) и е разположен на шести етаж.
Разпределение:
антре;
дневна с кухня и трапезария;
три спални;
две бани с тоалетни;
две тераси.
Жилището се предлага за продажба качествено завършено по БДС, на шпакловка и замазка.
Степен на завършеност:
ВиК инсталации /изпълнени на ниво тапа/;
Електроинсталации, звънчево-домофонна инсталация, ТВ инсталация, мълниезащитна инсталация всичките в напълно завършен вид;
Отоплителна инсталация - на газ;
Вентилационна инсталация;
Гладка вътрешна мазилка с шпакловка;
Бани и санитарни възли на мазилка и замазка;
Вътрешна стандартна дограма;
Външна ПВЦ дограма със стъклопакет;
Блиндирани входни врати;
Общи части в напълно завършен вид.
Очаквано завършване:
Акт 16 2027г.
Възможно е закупуване на паркомясто.
Гъвкава схема на плащане - съобразена с етапите на строителството, възможностите и желанието на купувача.
10% - предварителен договор
30% - кота 0
30% - Акт 14
30% - Акт ...
За повече информация свържете се с нас и цитирайте референтния номер на имота. Моля, кажете, че сте видeли обявата в този сайт.
Референтен номер: AP 131260
Тел: +359 889 007 010
Моб: +359 877 777 888 (WhatsApp, Viber, SMS)
Отговорен брокер:Стоунхард ПРЕМИЪР
Без комисиона от купувача







