КВ. МОДЕРНО ПРЕДГРАДИЕ! ИНВЕСТИЦИОНЕН ПОТЕНЦИАЛ! ГОЛЯМА КВАДРАТУРА! ГЪВКАВО И ФУНКЦИОНАЛНО РАЗПРЕДЕЛЕНИЕ! ИЗГОДНА ЦЕНА!
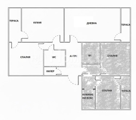
Имаме удоволствието да ви предложим за продажба изключително просторен и светъл многостаен апартамент с чиста площ над 135 кв.м в ж.к. Модерно предградие. Имота впечатлява с голяма квадратура, функционално разпределение и много светлина, което го прави идеален както за семеен дом, така и за инвестиция с потенциал за доход от наеми. В момента апартаментът е разделен на два самостоятелни двустайни жилища, всяко с отделна дневна, спалня, кухня и баня, готови за отдаване под наем, но бъдещият собственик може лесно да го преоформи в едно тристайно и едно двустайно жилище според нуждите си или да запази сегашната структура за директна доходност. Голямата площ и разпределението позволяват оптималното използване апартамента. Това е имот с рядко срещан размер и потенциал, предлаган на изключително изгодна цена, който съчетава простор, гъвкавост и възможност за доходност, привлекателен както за купувачи, търсещи комфортен семеен дом, така и за инвеститори. Не пропускайте възможността да станете собственик на този рядък имот с голяма площ, гъвкаво разпределение и изключителен инвестиционен потенциал на изгодна цена. Ако искате да закупите този имот или да организирате оглед, се обадете на 0875363330 и цитирайте следния код 142639.







