📢 0% КОМИСИОН! ДИРЕКТНИ ПРОДАЖБИ, 18050
Агенция за недвижими имоти 'ГОЛД ИМОТИ' има удоволствието да Ви представи новостроящ се обект в кв. Христо Смирненски!
✨ Комбинация от модерна архитектура, висока енергийна ефективност, премиум материали и внимателно планирана жилищна среда, която е подходяща както за динамично ежедневие, така и за дългосрочно спокойствие и удобство. Всяко пространство е планирано така, че да бъде практично, уютно и устойчиво във времето.
Проектът е създаден, така че да отговори на нуждите на съвременния градски човек с удобства, светли пространства и оптимални разпределения, които създават усещане за комфорт и завършеност.
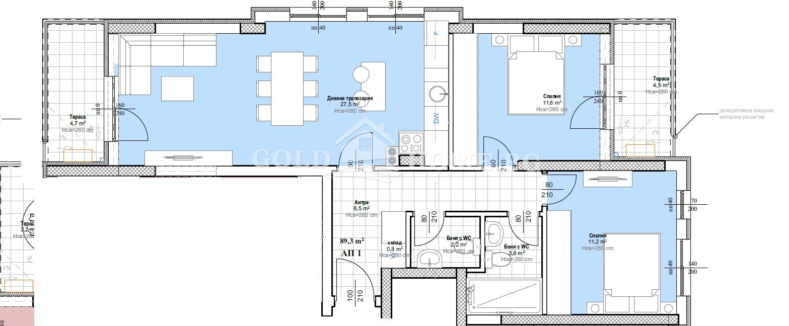
🎯Разполагаме с тристайни апартаменти на различни етажи, с различни изложения, които се състоят от входно антре, две спални, всекидневна с кухненски бокс, две бани с тоалетна, две тераси и изба :
В сграда А са с изложение : изток/запад/север:
-Ап.1, ет.2 - 104.56кв.м. /изба - 3,10кв.м./ - 153 000 ;
-Ап.7, ет.3 - 104,77кв.м. /изба - 3,31кв.м./ - 155 000 ;
-Ап.19, ет.5 - -104,66кв.м. /изба - 3,20кв.м./ - 153 000 .
В сграда Б са с изложение : изток/юг/запад/:
-Ап.1, ет.2 - 104.59кв.м. /изба - 2,68кв.м./ - 153 000 ;
-Ап.7, ет.3 - 105,01кв.м. /изба - 3,10кв.м./ - 157 000 ;
-Ап.13, ет.4 - 104,80кв.м. /изба - 2,89кв.м./ - 157 0006
-Ап.19, ет.5 - 105,12кв.м. /изба - 3,21кв.м./ - 153 000 .
✔️Степен на завършеност :
Апартаментите ще бъдат издавани по БДС: шпакловка и замазка, ел. инсталация до ключ, ВиК до тапа, външна блиндирана врата, алуминиева дограма.
🎯 Характеристики и предимства:
-Две огледални сгради с висококачествени и енергоефективни материали;
-Френски прозорци за оптимално естествено осветление;
-Алуминиева дограма;
-Висок клас шумо и топлоизолация;
-Премиум общи части;
-Висококапацитерен и тих асансьор.
📄 Срокове на изпълнение:
Към момента сградата е на Кота 0.00
Акт 14 се очаква до края на 2026-та година;
Акт 15 се очаква в срок до август 2027-ма година;
Акт 16 - началото на 2028-ма година.
✔️Схеми на плащане:
Разсрочени схеми на плащане:
-30% на предварителен договор;
-30% на акт 14;
-30% на акт 15;
-10% на акт 16.
Можем да предложим различна схема на плащане при наличие на банков кредит.
📍 Локация:
🎯Стратегически избрано място, което предлага спокойствие и уют и същевременно директен достъп до главен булевард , осигуряващ лесно придвижване до всички точки на града .
📍В непосредствена близост се намира магазин Lidl , където можете да немрите още няколко по-малки хранителни магазин, Lilly дрогерия, както и редица други специализирани магазини.
📍В близост са и Гребна база, СОУ 'Свети Кирил и Методий, детска градина 'Светла'.
➡️'ГОЛД ИМОТИ' Ви предлага да се възползвате от професионално кредитно посредничество чрез Credit Center при ипотека, потребителски кредит и рефинансиране!
-УСЛУГАТА Е ИЗЦЯЛО БЕЗПЛАТНА!
-ИЗГОТВЯНЕ НА НЯКОЛКО ОФЕРТИ ОТ ВОДЕЩИ БАНКИ!
-НАЙ-ИЗГОДНИ УСЛОВИЯ СПРЯМО ВАШИЯТ ПРОФИЛ!
-НЕ Е НЕОБХОДИМО ДА СЕ РАЗКАРВАТЕ ВЪВ ВСЕКИ КЛОН НА РАЗЛИЧНИ БАНКИ!
➡️ Още атрактивни и актуални оферти може да разгледате на нашият сайт: www.goldhome.bg
📞 За повече информация и при интерес за оглед, моля свържете се с нас.







