Референтен номер: VAR-136138
Представяме тристаен апартамент в новострояща се сграда, в м-т Пчелина. В тих и спокоен район с чист въздух и панорамни гледки над Варна.
Сградата е в процес на строителство, пред Акт 14, а Акт 16 е предвиден през март 2026 г.
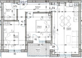
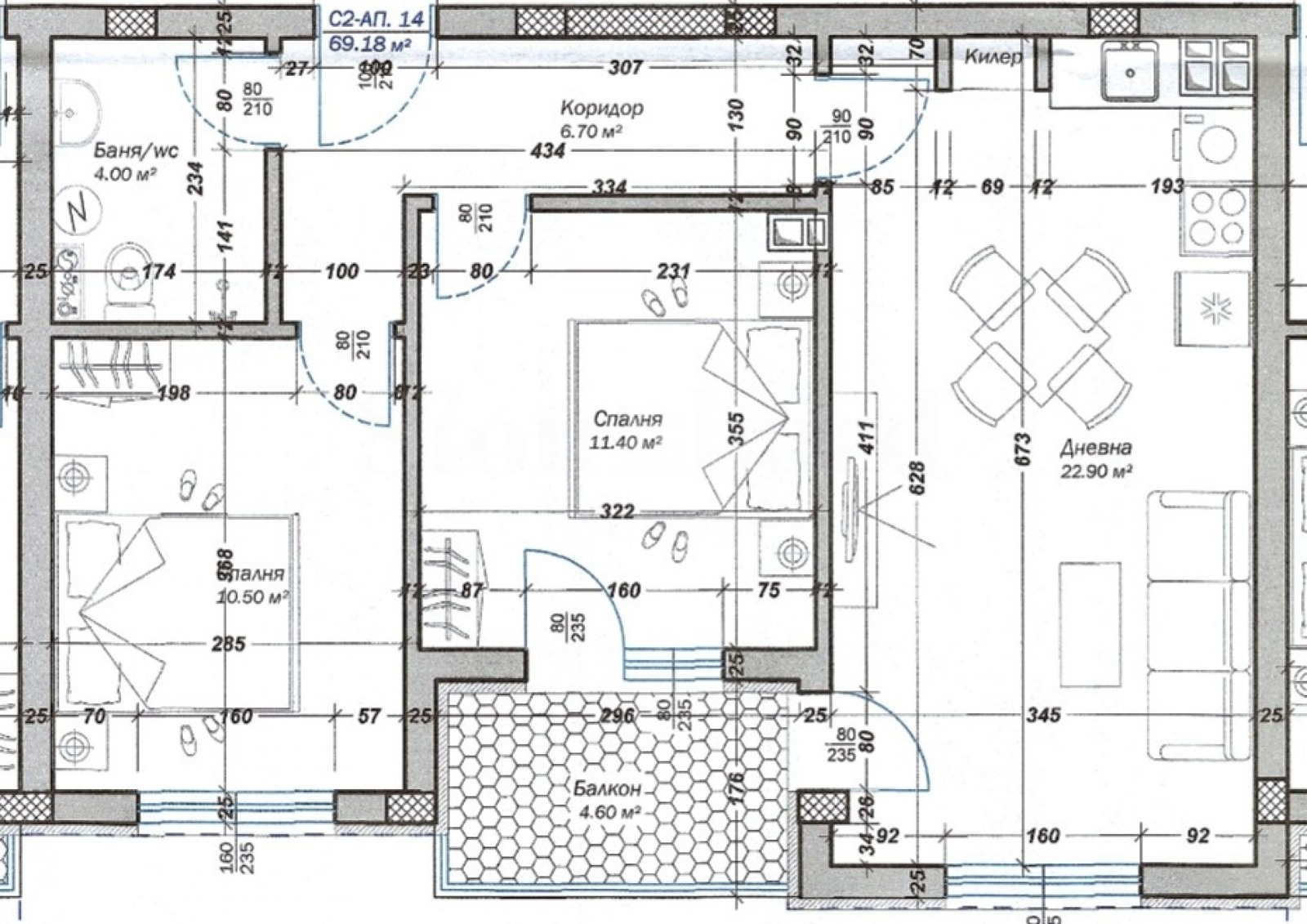
Жилището с обща площ от 89,47 кв.м е разположено на 2-ри етаж от 3, с изложение юг.
Разпределение:
входно антре;
дневен тракт с кухненски кът и трапезария;
две спални;
баня с тоалетна;
тераса с достъп от дневната и едната спалня.
Апартаментът се предава в степен на завършеност по БДС, на шпакловка и замазка.
Очакваме Вашето запитване
Ако желаете да организирате оглед на имот, който Ви интересува, или да посетите някой от нашите офиси, моля свържете се с нас. За да уговорите ден и час за среща или оглед, можете да се обадите на посочения в обявата телефон или да изпратите запитване чрез електронната поща. Нашият консултант ще Ви съдейства с всички необходими подробности и ще уговори удобно за Вас време.
Търсите подходящия за Вас имот?
Не се колебайте да се свържете с нас и да ни разкажете за Вашите нужди и предпочитания. Нашият екип ще проведе задълбочено проучване на пазара, за да Ви предложи имоти, които точно отговарят на Вашите критерии. Разполагаме с изключително портфолио от висококачествени и ексклузивни жилища, които са достъпни само за нашите клиенти. За да сте първите, които ще получите информация за тях свържете се с нас.
Допълнителни услуги
Като ценен клиент на нашата компания, Вие ще имате привилегията да ползвате напълно безплатно услугите на нашия опитен юридически екип. В допълнение, предлагаме комплексни решения, включващи имуществена застраховка, безплатна финансова консултация, както и изгодни условия за финансиране. Нашите услуги се разпростират и в сферата на препродажбата, отдаването под наем и управлението на имоти. Осигуряваме висококачествени ремонтни дейности и обзавеждане чрез специализирани ...
За повече информация свържете се с нас и цитирайте референтния номер на имота. Моля, кажете, че сте видeли обявата в този сайт.
Референтен номер: VAR-136138
Тел: +359 889 007 010
Моб: +359 877 777 888 (WhatsApp, Viber, SMS)
Отговорен брокер:Стоунхард ПРЕМИЪР







