ПРОСТОРЕН ТРИСТАЕН АПАРТАМЕНТ! АКТ 16! ЮГОИЗТОЧНО ИЗЛОЖЕНИЕ! ПАРКОМЯСТО В ЦЕНАТА!
ЕКСПЕРТ ИНВЕСТ има удоволствието да ви представи за продажба голям тристаен апартамент в близост до болница Св. Марина и Технически университет!
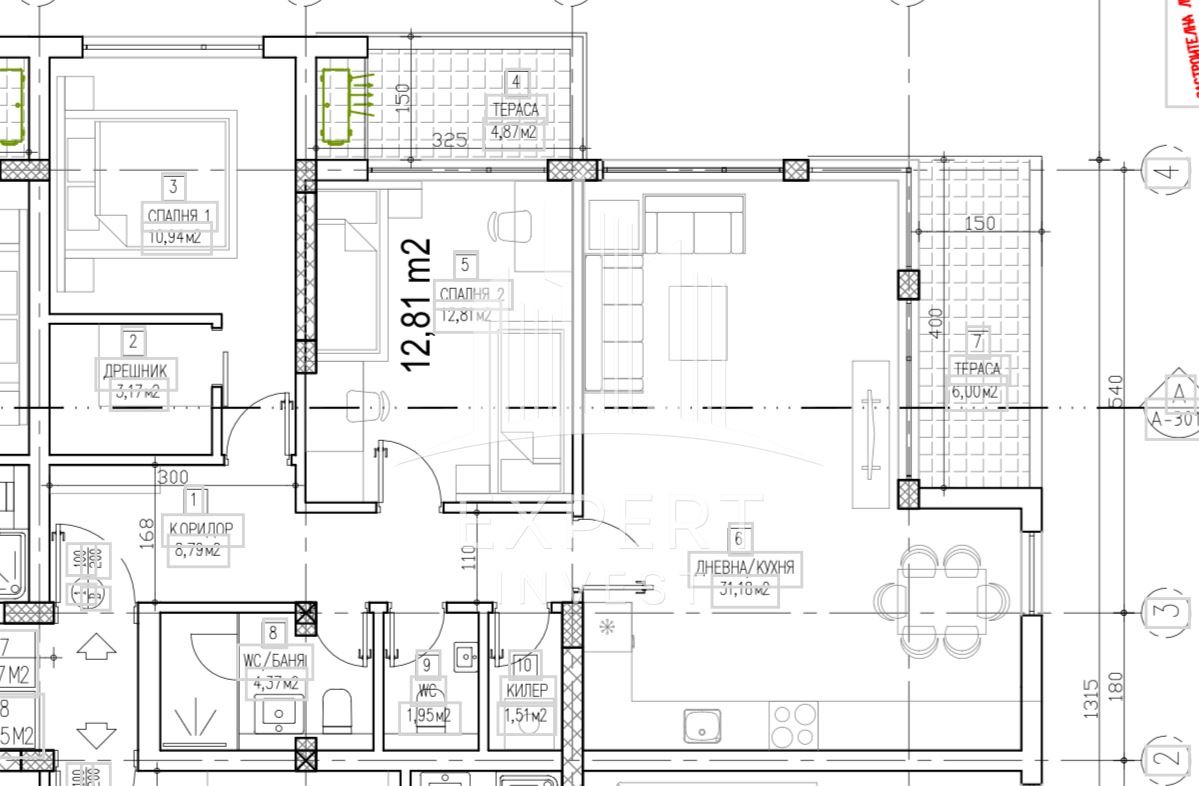
Апартамента е с много удобно разпределение!
Голямо входно антре/ коридор.
Спалня със собствен дрешник.
Втора спалня с източна тераса.
Баня и тоалетна заедно, перално помещение, килер или втора wc.
Просторна и слънчева дневна с кухненска част над 30 кв.м., от която се излиза на южна тераса.
Апартамента е подходящ за кредитиране!
Съдействаме за отпускане на банков кредит при преференциални условия от водещи банки в страната.
За по-голяма яснота прилагаме схема на разпределение.
Към апартамента има избено помещение.
ПАРКОМЯСТО В ЦЕНАТА!
За повече информация обадете се сега и цитирайте този код: 1306







