ТРИСТАЕН ИЗТОК / ЮГ | AКT 14 / 16 ДО КРАЯ НА 2026 г.
ЕКСКЛУЗИВНО от ЕЙЧ ЕЙЧ Пропърти
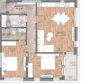
Предлагаме тристаен апартамент, разположен на втори етаж в модерен жилищен комплекс Marica Park.
Площ: 102,93 кв.м.
Изложение: изток / юг
Разпределение:
просторна дневна с кухненски бокс и трапезария, две спални, две бани с тоалетни, входно антре и тераса функционално и удобно разпределение, без излишни преходи.
За комплекса:
Marica Park е ново поколение жилищен комплекс с контрол на достъпа, богато озеленяване, алеи за разходка и спокойна жилищна среда. Проектиран с акцент върху комфорт, пространство и качество на строителството.
Етап на строителство:
Акт 14, Акт 16 до края на 2026 г.
Локация:
На пешеходно разстояние са разположение хранителен магазин, хипермаркети, спортна зала, училища, автобуси на градски транспорт и болница. Бърз достъп до околовръстен път (5мин).
Подходящ както за собствено ползване, така и за инвестиция.
Контакт: 0897 080 399 Ангел Катушев
Агенция: ЕЙЧ ЕЙЧ Пропърти







