ДВУСТАЕН С ОПЦИЯ ЗА ПРЕУСТРОЙСТВО В ТРИСТАЕН
НАПРЕДВАЩО СТРОИТЕЛСТВО! ДНЕВНА НАД 30 КВ.М! СПАЛНЯ НАД 20 КВ.М. ГЛЕДКА САМО ЗЕЛЕНИНА!
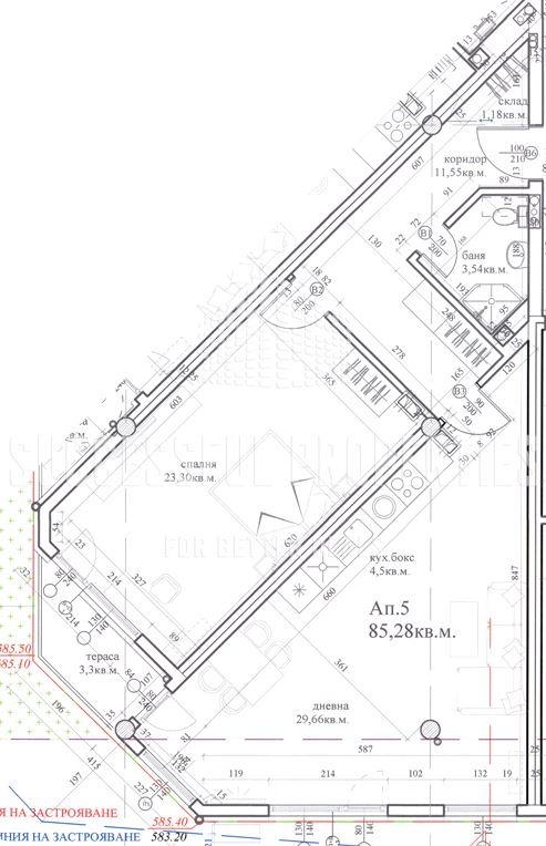
SUCCESSFUL PROPERTIES представя двустаен апартамент за продажба в ж.к Горубляне, в новострояща се сграда, с АКТ 14 и чл. 181, напредващо строителство към АКТ 15. Имотът ще бъде въведен в експлоатация през 2026г, като строителството върви без забавяне. Имотът гледа на югоизток, като пред него е само зеленина, помещенията са просторни и светли. Към апартамента се продава и подземно паркомясто . Обща площ на апартамента: 96. 20 кв.м, застроена площ: 85. 28 кв.м.
Разположен на първи висок етаж, състоящ се от голяма дневна, голяма спалня, коридор с място за гардероб и склад, баня с тоалетна и тераса с гледка.
Намира се до блок 42 в ж.к Горубляне, на 3-4 мин от спирка на автобус 4, на около 5-6 мин пеша от Кауфланд Горубляне, с бърз достъп до ул. ''Самоковско шосе'' и бул. ''Цариградско шосе''
Продажна цена 144 500 евро; паркомясто 18 000 евро; работим с колеги всикчи оферти!
Съдействие при покупка с кредит! За огледи и допълнителни въпроси Христо Иванов на телефон: 0879890105 или имейл:[email protected]







